Материалы
Садовые скамейки бывают стационарными и мобильными, оба вида имеют разные требования к материалу. Модели, которые устанавливают на аллеях парков раз и навсегда, должны обладать высокой прочностью, долговечностью, иметь хорошие износостойкие качества, не реагировать на механические воздействия, не бояться жары и морозов.
Если речь не идет об уличных конструкциях, а лишь о переносных удобных скамеечках, они могут выполняться из пластика, фанеры и даже ткани, натянутой на алюминиевом каркасе. Рассмотрим разные варианты материалов, из которых производят скамейки для садов и скверов.


Древесина
Дерево – самый распространенный и гармоничный материал для парковых лавок, такие изделия легко становятся частью природного ландшафта. Деревянные модели отличаются большим разнообразием. Кроме классических изделий из досок, изготавливают скамьи из цельных бревен, слэбов, веток и даже корней. Конструкции обрабатывают бактерицидными и противогрибковыми составами, защищают морилкой, лаками, краской. Для долговечных выносливых лавок используют дорогие плотные сорта древесины, которые устойчивы к влаге и промерзанию. К ним относятся дуб, граб, акация, вишня, лиственница, карельская береза.
Ротанг
В производстве садовой мебели, в том числе и скамеек, применяется как искусственный, так и натуральный ротанг. Прочность конструкции придает легкий и надежный алюминиевый каркас, способный выдерживать большую нагрузку. Рабочие характеристики у искусственного и природного материала сильно разнятся.
Из ротанга растительного происхождения получаются необычайно красивые изделия, с ними приятно тактильно контактировать, на них удобно сидеть. Но такие скамейки не любят влагу, их нельзя оставлять у радиаторов, а на ночь лучше заносить в дом. Конструкции из искусственного ротанга неплохо выглядят, они устойчивы к осадкам, не трескаются и не выгорают на солнце, их трудно повредить. Мебель можно оставлять на улице на время всего теплого сезона.
Чугун
В отличие от мобильных ротанговых скамеек, которые заносят в помещение, литые чугунные лавочки стоят в парках зимой и летом. Чугун – тяжелый, крепкий материал, ему не страшны любые погодные условия, и даже вандалы. Для создания скамеек подобный металл используется в сочетании с древесиной, ею покрывают сидения и спинки изделий.


Ковка
Изысканные кованые лавочки стоят недешево. Их применяют на участках с хорошим ландшафтным дизайном, где в таком же стиле обустроены и другие элементы двора и сада – беседки, качели, навесы, шпалеры с цветами.
Определение конструкции и размеров скамейки со спинкой. Чертежи.
С материалом мы определились. Чтобы узнать, сколько нам потребуется древесины, необходимо спланировать конструкцию и размеры скамейки, которую будем делать своими руками. Она должна быть не слишком высокой и не слишком низкой, туловище должно удобно облокачиваться на спинку — не находится в напряжении.
1,3 метра в ширину достаточно, чтобы рядом комфортно смогли сидеть два человека, а ширина сидения около полуметра удобна для ног. Ну и спинку также сделаем не более 0,5 метра.
Итак, набросаем чертежи. Вот набросок — ориентировочные размеры и внешний вид скамейки со спинкой.
Как получились именно такие габариты. Дома я сел на обыкновенный стул со спинкой и прикинул, как мне будет удобно сидеть в расслабленном состоянии. На какой высоте от пола должна быть скамейка, чтобы ноги и не висели, но в тоже время и не слишком сгибались. Таким же образом определял высоту спинки, чтобы на нее удобно опираться. Затем рулеткой замерил длины относительно своего тела.
На следующем рисунке размеры деталей каркаса, исходя из заданных.
И вид сбоку.
Для воплощения идеи в жизнь запасаемся инструментом и пиломатериалом.
|
Скамейка из бревна
Участок можно оформить в любом стиле, но практически все уходят от стандартных подходов решения проблемы. Каждому хочется иметь что-то свое. Но не все знают, что новое, это усовершенствованное старое. Как вариант нового, но несколько усовершенствованного старого, это вариант использования бревна, в качестве скамейки. В качестве сидушки можно использовать бревно большого диаметра, распиленного вдоль. В качестве спинки используется бревно меньшего диаметра, так же распиленного вдоль. Или меньший по диаметру ствол, но срезанный ближе к краю. В качестве ножек используются узкие отрезки бревна.
Скамейка из бревна — быстро и просто
Ножки и сидения соединяются между собой с помощью металлических штифтов. Под штифты сверлятся отверстия несколько меньшего диаметра. Штифты должны заходить в отверстия с усилием. При этом, половина штифта забивается ударами по штифту, а вторая половина загоняется ударами по дереву. Как правило, бьют не по самому дереву, поскольку могут остаться следы от молотка, а с помощью деревянной наставки. Такое соединение должно быть надежным, хотя вариантов крепления множество.
Вариант скамейки без спинки
На фото, чуть выше, можно ознакомиться с еще одним вариантом, в стиле «этно». Его организация связана с наличием камня, хотя такой вариант вполне реализуем при наличии бревна. В качестве сидения используется достаточно толстое бревно, а в качестве ножек – часть колоды большого диаметра. В одной и другой части колоды вырубаются пазы под сидушку. В качестве инструмента используется топор или болгарка. Как вариант, можно прибегнуть к помощи бензопилы. Это не постсоветские «Дружбы» или «Уралы», которые имеют значительный вес, и ими, разве что, удобно валять сосны в Сибири. Если взять на вооружение бензопилу «Штиль», то с ее помощью можно делать и не такие произведения искусства.
Из бревен реально сделать и стол, который просто необходим на даче. На фото можно увидеть результаты подобных действий. Столешница, сделанная из досок, а остальные части ансамбля из бревен из разных диаметров.
Стол со скамейками из бревен
Следующая скамейка, сооруженная в этом стиле, имеет совсем оригинальное исполнение. Здесь, ножки и подлокотники сделаны из веток различной толщины, а сидение из обработанной, качественной необрезной доски.
Вариант скамейки из древесины для сада или на дачу
Другая скамья сделана в том же стиле. Разница лишь в том, что доски и ветки имеют противоположное направление. В результате получается совсем другой вид. Что касается исполнения, то здесь особого мастерства не требуется. Чем небрежнее конечный результат, тем он ценнее. Во всяком случае, так воспринимают окружающие подобный подход. Скорее всего, что люди устали от мнимого совершенства и им больше по душе кустарщина и примитивизм.
Плетеная спинка — встретишь нечасто
Как вариант, вокруг дерева можно организовать площадку для отдыха и установить скамейку.
Место для отдыха под деревом
Это совсем не сложно, если рядом установить качели и беседку. Над самой скамейкой лучше соорудить перголу, похожую на арку. Для полноценного отдыха не хватает только пруда, фонтана или водопада.
Выбор материала
Многочисленные предложения от изготовителей мебели уже давно дополнены садовыми комплектами и монопредметами. Всепогодная мебель неизменно становится предметом спроса и интереса потребителя, если речь идет об относительно дешевых изделиях из дерева.



Пластиковые комплекты будут стоить дешевле, но деревянные скамейки пользуются популярностью из-за натурального материала, который более теплый и приятный в использовании. Садовая мебель из дерева изготавливается из бревен, досок, реек, в комбинации с металлом, бетоном.

Дачную садовую скамейку для внутреннего пользования можно делать из любого материала, включая поддоны, с ящиком для хранения инструментов или мелких предметов, трансформеры, которые при желании превращаются в другой полезный предмет мебели, и старые стулья.
Также читайте: Как сделать дорожки на даче своими руками из подручных материалов

Но для эстетичной визуализации, в ландшафтном дизайне предпочтительнее натуральная древесина или ее остатки после строительства дома. Специалисты рекомендуют для этой цели использовать древесину хвойных пород (ели, лиственницы, сосны, кедра). Подойдет и тик или дуб. Если же сооружение находится под навесом, вполне достаточно будет липы или ясеня.
Простая скамья для дачи- пошаговая инструкция
Чтобы сделать скамейку из дерева, предлагаем ознакомиться с алгоритмом работ. Как вы можете видеть по фото, у нее очень удобная и простая конструкция.

Чертеж дачной скамейки
Самое важное, чтобы сделать лавку своими руками- правильный чертеж будущего садового шедевра
- Размер. Замеряйте место, где будет стоять лавка, чтобы ее размеры впоследствии вписались и ландшафт. Прикиньте все параметры изделия.
- Перенесите все замеры на бумагу, соблюдая масштаб.

- Стандартный замер- высота от земли до сидушки- 50-60 см. Его можно менять, но помните, что лавочка должна быть удобной и детям и взрослым.
- Декор также перенесите на другой лист бумаги, чтобы получился шаблон.
- Только после этого можно строить деревянную лавочку.

Этап подготовки
В нашем случае это садовая скамейка со спинкой прямого типа, из планок без сколов и трещин. Вам потребуется три вида досок:
- толстое прямоугольное бревно;
- доска толщиной 3-4 см;
- брус сечением 7 см.
Приготовьте такие инструменты:
- ножовка;
- молоток;
- гвозди;
- краска или лак;
- кисть;
- шуруповерт;
- саморезы;
- линейка и карандаш;
- дрель.
Можно смело приступать к изготовлению.

Этап создания ножек
Чтобы смастерить ножки, следуйте такому алгоритму:
- Берите досточку толщиной не менее 3-4 см. Ножовкой вырежьте 2 опоры, а так как ширина и толщина у вас уже есть, дело остается за высотой. Стандартно она будет равняться 40-50 см, но этот параметр остается на ваше усмотрение.
- Проверьте, ровные ли они. Измерьте их, приложив друг к другу. Погрешность даже в 1 см перекосит изделие. Отрежьте лишнее. В дальнейшем для придания конструкции жесткости, можно между стойками понизу укрепить поперечину.

Изготовление спинки
Если вы хотите узнать, как сделать спинку скамейки, обратите внимание на следующие шаги:
- В нашем случае спинка лавки будет в виде 2 досок толщиной не менее 3 см. По желанию досок может быть 3-4 шт. Сама по себе она будет высотой 40 см (можно менять), поэтому планки устанавливаются с зазором между ними. Ее величина равняется длине сидения. Для верности ее можно отрезать немного шире, а потом удалить лишние сантиметры.
- Вырежьте заготовки, выровняйте их. Если надо, то спилите лишнее.
Изготовление сидения
- Уложите на землю такое количество брусков, какой шириной будет ваше сидушка.
- По желанию, оставьте между ними 1-см зазоры. Если ширина сидушки будет 50 см, то 6-7 шт брусков будет достаточно.
- Обрежьте все бруски, чтобы они были одинаковыми. Помните, что их длина должна совпадать с аналогичным параметром заготовки под спинку.
- Обработайте краешки с помощью лобзика, чтобы они не были острыми.

Изготовление каркаса
Теперь нужно собрать все заготовки воедино.
- Работу начинайте снизу конструкции, двигаясь вверх.
- Сколотите брус-планку, чтобы изготовить ножки. Для этого возьмите 4 см доску, выпилите длину, равную лавочке. Ширина ее равняется ширине сидения- около 50 см.
- Получившуюся планку прибейте к ножкам обычными гвоздями. У вас выйдет растянутая П-образная основа. Эта конструкция будет временной, чтобы помочь в сборке, а потом ее нужно будет разобрать.
- Собираем основу спинки. Возьмите еще 2 бруска сечением 7 см, отрежьте необходимую длину, такую, чтобы ее хватило для крепления к ножкам в торец.
- Готовые бруски привинтите шурупами к основанию.

Садовая скамейка из досок практически готова.
Монтаж готового изделия
Чтобы смонтировать деревянную лавку на дачу, необходимо собрать все заготовки.
- Первой крепится спинка. К брусам шурупами прикручиваются вырезанные планки. Движение идет сверху вниз.
- Уберите «времянку», и прибейте первый брусочек сидушки с внутреннего края, который в глубине.
- Вторую планку крепите ту, что внешнего края, оставляя середину пустой.
- Сформируйте ровную серединку с одинаковым расстоянием между брусками сидения.

Декорирование садовой мебели
- Чтобы завершить дачную скамеечку своими руками, осталось только отшлифовать доски и вскрыть изделие для дачи лаком.
- Если опоры будут стоять на земле, дополнительно вскройте их олифой или машинным маслом, чтобы избежать гниения и порчи.
- Чтобы сделать лавочку со спинкой настоящим шедевром, позаботьтесь об украшении. Это может быть орнамент, узорные подлокотники или покраска.
- Это мобильная модель, поэтому ее можно переносить в любую часть усадьбы. Если хотите стационарную, то изготовьте ножки на 30 см длиннее, вкопайте их в землю на 30-40 см, и выставьте по уровню.

Рядом с таким изделием красиво будут смотреться ароматные клумбы, альпийские горки или цветы в самодельных кашпо.
Изготовление скамейки
Зачастую скамейка изготовляется из деревянных брусков, реек или досок так как они просты в изготовление, имеют длительный срок эксплуатации. Примерные параметры лавочки указаны выше, длина лавки зависит от желания и возможности
Важно отметить, что реечки нельзя размещать вплотную, так как они могут начать гнить из-за застоя дождевой воды. Нужно или располагать рейки на небольшом расстоянии, или использовать одну сплошную широкую доску





Для того, чтобы создать оригинальную скамейку не обязательно тратить деньги на дорогие материалы, ведь шедевр можно создать даже из веток и корней. Правильно обработав естественную древесину, поддоны и упавшие деревянные столы можно сотворить необычную и интересную скамью с естественными формами.





Самым элементарным примером аскетичной скамейки является «Монастырская» скамья, которая изготавливается из распиленного вдоль ствола дерева, установленного на две круглые опоры. Опора выполняется из небольших обрезков ствола небольшого диаметра.





Выбор материалов
Как и во многих других случаях, сначала надо определиться с дизайном и материалами. Интересное здесь заключается в том, что выбор материалов напрямую зависит от дизайна.

Сначала изучите фото лавок, сделанных своими руками, может увидите что-то интересное вам, а потому и дизайн придумывать не придется.
Далее мы должны решить то, где будет стоять наша лавка. От этого зависит ее конструкция, размеры, да и опять же – материалы. Например, если мы делаем своими руками лавку в баню, то стоит использовать дерево – никакого металла. Вместе с тем должна соответствовать и форма, а в баню лучше подойдут самые простые и практичные лавки.

Итак, мы уже знаем, что лавки делаются из дерева и металла, причем первый материал встречается чаще всего. Однако на этом еще далеко не все.


Если вы думаете о том, как сделать лавку своими руками качественной и практичной, то наилучшим вариантом будет выбрать дерево.

Работать с деревом значительно проще чем с той же сталью, а из инструментов понадобиться базовый набор из ножовки, рулетки карандаша и молотка. Хорошо, если к ним можно будет добавить дрель или шуруповерт.

Как сделать лавочку для бани,пошагово
Для банной лавочки требования особые. Материал должен хорошо выдерживать высокие температуры и влажность, не должен коробится или трескаться. Всем этим качествам отвечает дерево.
Для парной лучше выбрать следующие породы:
- лиственница;
- дуб;
- липа.
Первый вариант не самый дешевый, а вот два остальных не ударят по карману. А при выборе липы вы будете получать пользу от ее аромата. С материалом определились. С чертежом проблем тоже не возникнет, его можно сделать самому, либо найти в сети готовый вариант.
Для работы готовим следующие инструменты:
- ножовка;
- рубанок;
- шуруповерт;
- дрель;
- молоток;
- шлифовальная машинка;
- саморезы;
- доски, бруски и планки.
Теперь повторяем следующие действия:
- из 5 см досок нарезаем опоры, подкосы и сидение лавочки;
- хорошо шлифуем все элементы;
- к ножкам крепим поперечены;
- после крепим саморезами сидение;
- остается прикрепить подкосы к сидению и поперечинам.
Вот и лавочка готова. Можно заносить ее в баню и пользоваться.

Кресло-скамейка для сада из паллет
У разумного хозяина любой материал имеет свою ценность. Садовую мебель можно без проблем сделать из грузовых паллет. Причем, разбирать-то их особо не требуется: из одной паллеты делается спинка, а из другой – сидушка. Остается только подумать над тем, из чего изготовить подлокотники и ножки.
Вот что должно получится
Одна из паллет усиливается за счет дополнительных брусков, которые крепятся с помощью саморезов.
Усиливаем углы паллеты
После этого берется брус, размерами 100х100 мм и произвольной длины, после чего отрезается 4 одинаковых отрезка, длиной до 80-ти см. Они крепятся в тех местах, где расположены бруски усиления, поставленные заранее. Как результат, достаточно будет ножек, длиной 20-25 см. Для крепления используются саморезы, длиной не меньше 150 мм. В процессе работы нужно сделать, чтобы бруски были правильно прикручены, чтобы можно было установить ножки одинаковой длины.
Прикручиваем ножки-опоры для подлокотников
Если после этих действий не удается получить абсолютно ровную конструкцию, то ножки можно подпилить по окончании, если лавочка не установится ровно.
Ножки прикрутили
Вторая палетта крепится к задним стойкам, а по обеим бокам – дощечки для подлокотников.
Почти готово
Далее – по необходимости. Если хочется иметь мягкую мебель, то достаточно приобрести поролон, вырезать необходимый кусок и обшить влагостойким материалом. Таким же образом можно поступить и со спинкой.
Если таких планов нет, то можно просто тщательно обработать деревянные элементы наждачной бумагой, после чего скамейка просто красится любой краской, любого цвета.
Готовый продукт: кресло из паллет
Секреты выбора
Выбор скамейки зависит от её назначения.
- Для городских аллей, скверов и парков выбирают прочные стационарные модели из чугуна или бетона, которые выстоят в любую непогоду и не сломаются даже под самыми нерадивыми седоками.
- Для украшения загородного участка следует подбирать изделия, гармонирующие с другими объектами на придомовой территории, например, кованые лавочки, модели с аркой. Если на участке есть сруб, сидушка в виде брёвен станет удачным вариантом.
- Для зоны отдыха отлично подойдут подвесные качающиеся конструкции, они могут иметь тент от солнца и защитную сетку от насекомых. Здесь же уместны шатры с несколькими скамейками.
- На детские площадки устанавливают яркие сидения или модели с мультяшными героями, животными, растениями, бабочками, в виде машин и корабликов. Сюжетные изделия радуют детей и будят в них воображение.


Если скамейка нужна для работы в огороде, можно выбрать модель-перевёртыш – на ней и отдыхать хорошо, и сорняк пропалывать. Веранды, перголы, террасы, балконы, беседки стараются оснастить добротной уличной мебелью из искусственного ротанга. Её можно не заносить до глубокой осени, периодически сбивая пыль из шланга. Для дач и загородных домов удобны переносные скамейки или изделия на колёсах. Они послушно будут ездить за дачником хоть весь день.
У туристического направления есть свой особый вид скамеек: лёгкий, прочный и быстро складывающийся. На участках с большим дефицитом свободного места пригодятся скамейки-трансформеры, легко раскладывающиеся в стол с лавками, или откидная модель на стену, которую опускают только по мере необходимости.


Варианты моделей
| Вариант | Описание |
|---|---|
![]() Скамейка из обрезной доски | Самый простой и недорогой вариант. Доступен для изготовления и тем, кто раньше даже не пробовал изготавливать мебель. В работе главное – точно вымерять размеры и четко производить распил досок, крепко закручивать крепеж. А в завершении стоит хорошенько ошкурить все поверхности, антисептировать и покрыть лаком. |
![]() Скамейка из необрезной доски | Еще один бюджетный вариант. Сложность сборки заключается в том, что необходимо хорошо подгонять изгибы торцов друг к другу, чтобы не было слишком больших щелей на сиденье и спинке.Совет! Необрезная доска прекрасно гармонирует с грубыми неотесанными пнями, которые можно использовать как толстые устойчивые ножки. |
![]() Скамейка из поддонов | Деревянные поддоны можно приобрести примерно за 60-200 рублей за штуку. Но желательно выбирать чистые поддоны, без масляных пятен, больших тещин, не слишком долго бывшие в эксплуатации. Для скамьи понадобится 2-3 поддона. А форма и размеры готового изделия будут целиком зависеть от вашей фантазии. |
![]() Скамейка из веток | Коряги, пни, извилистые толстые ветки… Все это может пригодиться в строительстве. Чем более витиеватые ветки вы найдете, тем более фигурной и интересной будет спинка скамьи. А сиденье все же лучше делать из доски, ведь сидеть удобнее на ровной и гладкой поверхности. |
![]() Скамейка плетеная | Легкие ажурные скамейки удобны и практичны. Их не сложно переставлять с места на место, можно дополнить мягкими подушками для отдыха в знойный летний день. Плетеная мебель подходит и для улицы, и для использования в помещении. Плетут мебель из искусственного ротанга или ивовой лозы. Занятие это не самое быстрое, требует мастерства и усидчивости. Новичкам желательно сначала потренироваться на простых изделиях малого размера, прежде чем приступать к плетению целой скамьи. |
![]() Скамейка из бревен и спилов | Такие громоздкие изделия могут стать украшением сада, им найдется место около пруда или рядом с вашей мастерской. Скамью можно изготовить из целого бревна большого диаметра, выбрав четверть и уложив его на подставки с полукруглыми пазами. Либо использовать распиленное надвое бревно как сиденье, а спинку сделать из обрезных либо необрезных досок и брусков. Помните, что изготовить такую скамью в одиночку может быть очень трудно из-за большого веса бревен. |

Скамейка из поддонов своими руками
Где установить лавку
В жаркую погоду порой хочется спрятаться от палящего солнца. Для этого дизайнеры рекомендуют устанавливать лавки под кронами деревьев.
Если на участке есть водоем, то обязательно возле него поставьте небольшой диванчик.
Лавки ожидания устанавливают возле входа в дом или ТЦ. Это позволяет посетителям отдыхать перед или после прогулок по торговому центру.
Лавка огородника должна иметь удобную спинку и небольшой вес. Дачники во время огородных работ часто перемешаются по участку, при этом перенося с собой лавочку.
Если лавочка нужна на весенний или осенний период, то ее устанавливают в местах большего попадания солнечных лучей.
На смотровых площадках рекомендуют устанавливать смотровые варианты. Это позволяет посетителям любоваться захватывающими пейзажами.

Выбирайте и устанавливайте скамейку правильно, поскольку от этого зависит вид всего участка. Для дачников рекомендуют использовать легкие складные лавки лучшего производителя «Ника». Их можно приобрести в интернет магазинах. К тому же, там продаются не только складные варианты, но и лавки с подлокотниками, спинкой и без спинки. Найти подходящие варианты можно в любом строительном магазине. Уличная мебель станет украшением любого сада и участка.
Использование древесины на дачном участке
В настоящее время строительными магазинами предлагается на выбор огромное количество различных готовых скульптур и других элементов для сада и огорода, выполненных из различных материалов.
Но лучше не полениться и изготовить дачные поделки своими руками – из дерева, в отличие от камня или металла, их делать не так уж сложно, а получившийся результат превзойдет ваши самые смелые ожидания.
Идеи для поделок
Остановимся на интересных и несложных для реализации конструкциях:
- Наиболее часто встречающийся вариант – скульптуры из древесины
. Это может быть фигура, выполненная из цельного бревна либо составленная из нескольких частей, соединенных между собой тем или иным образом. - Хорошо выглядят поделки из веток и пней, которые напоминают зверей, птиц или сказочных персонажей
. В этом случае вам практически не нужно вносить изменений в их природную форму, достаточно очистить материал от коры и залакировать.
- Хорошо подходит для творчества фанера
. Нарисуйте на листе аиста, мельницу или лягушку-царевну, отрежьте лишние части и покрасьте изделие.
- Из фанеры можно сделать и прекрасные емкости для растений, скворечники для птиц
. Еще одна красивая и полезная вещь – кормушка.
Бревна в качестве материала для творчества
Очень часто при оформлении дачного участка требуется спилить одно или несколько деревьев. Конечно, они прекрасно подойдут в качестве дров, но лучше проявить фантазию и пустить их на поделки из бревен для дачи: своими руками вы без проблем сделаете клумбу, скамейку либо декоративный колодец.
Рассмотрим эти варианты более подробно.
- Клумба для цветов. Для большинства дачников не в новинку , изготовленные из различных подручных материалов: гипса, пустых стеклянных бутылок, старых автомобильных шин и так далее. Но именно старое бревно как ничто другое подойдет для этой цели.

Для изготовления необходим молоток со стамеской либо бензопила. Сделав выемку подходящего размера и установив бревно на опоры, вы абсолютно бесплатно поучаете необычное и симпатичное изделие. Останется только наполнить выемку землей и посадить цветы.
Садовая мебель. Прекрасное решение, которое, однако, не так просто реализовать. Прежде всего, необходимо подобрать бревно достаточно большого диаметра.Затем тщательно обработать его различными инструментами:
- первая стадия – топор или бензопила;
- вторая стадия – стамеска и молоток;
- третья стадия – шлифование и нанесение защитного покрытия.

- Декоративный колодец. Очень красивый аксессуар для дачного участка. Минус его в том, что для изготовления не подойдет старая древесина. Нужно приобрести качественный оцилиндрованный кругляк и сложить из него сруб.

Краткая характеристика различных видов скамеек с фото
Классическая. Обычная деревянная скамейка. Конструкция простая. Внешний вид ее можно изменить, сделав спинки например крестообразными, или изменить фигуру поручней.










Металлическая. Она всегда красивая. Готовится металлический каркас, а затем соединяется вместе. Изделие можно украсить различными металлическими фигурами. Есть в таком изделии маленький недостаток: сидеть на металле некомфортно.
Поэтому на сиденье надо закрепить доски. Комбинация металла с деревом создает особое впечатление. К тому же на такой скамейке очень комфортно отдыхать.













Каменные конструкции. Это всегда не только красиво, но и очень оригинально. Вид сказочный. Такое сооружение ставится на века. Его не сдвинуть с места.







Здесь необходимо очень тщательно подойти к выбору места, чтобы скамья прекрасно смотрелась на фоне сада, всего участка, украшала его. Есть один недостаток такой скамьи: камень сильно холодит, надо продумать как утеплить сиденье.
Коротко о главном
Если вы хотите, чтобы приусадебный участок был уютным и стильным, не обойтись без скамейки. Она станет главной деталью зоны отдыха и изюминкой пейзажа.
Чтобы гармонично вписать её в окружение, важно выбрать подходящее место. Лавочки с продуманным дизайном будут красоваться радом с домом, конструкции попроще сыграют вспомогательную роль
Лавочка будет удобной, если соблюдены пропорции отдельных частей. Практичной её делают конструктивные особенности: встроенные вазоны или ящики, а оригинальной – дизайн.
Независимо от материала изготовления вся садовая мебель нуждается в уходе.
Как сделать простую деревянную скамейку со спинкой своими руками
Как сделать простую деревянную скамейку со спинкой своими руками
Конструкция скамейки
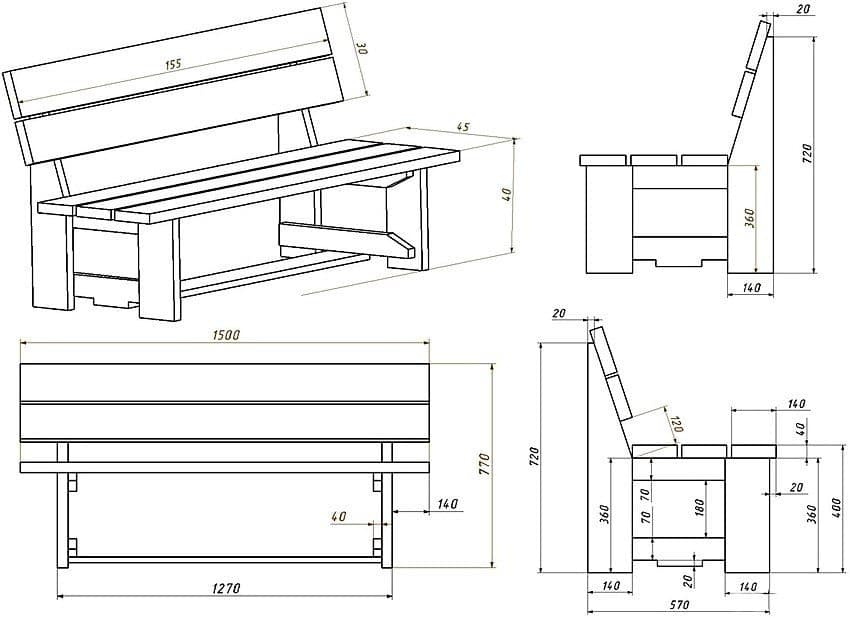
Длина сиденья и спинки будет равняться 1500 мм. На этой мебели могут сразу комфортно разместиться три человека. Высота сиденья — 450 мм, высота спинки — 900 мм. Спинку желательно расположить под углом 18-20 градусов. Ширина сиденья равняется 400 мм.
Материал и инструменты для изготовления садовой скамьи из дерева
- Деревянные доски 1500 на 150 мм, толщиной 35-40 мм. Три заготовки для сиденья и две для спинки.
- Заготовки, выполняющие функцию ножек и держателей для спинки — 900 на 150 мм, толщиной 35-40 мм.
- Заготовки для передних ножек скамейки — 360 на 150 мм, толщиной 35-40 мм.
- Брусы 40 на 40 мм, будут использоваться для усиления конструкции скамьи.
- Саморезы.
- Электрический лобзик для раскроя досок.
- Электрорубанок для шлифовки поверхности досок и обработки фасок.
- Шуруповерт.
- Наждачная бумага.
- Лак и грунтовка.
Изготовление деревянной конструкции
Чертеж скамейки
Шаг 1. Доски для изготовления скамейки можно приобретать сразу в размер, если таковых в продаже не имеется, древесину придется кроить на заготовки с помощью лобзика или торцовочной пилы.
Чертеж скамейки вид сбокуЧертеж вид сбоку с размерамиЧертеж вид спереди
После того как древесина раскроена на нужную длину, ее требуется тщательно обработать. Заготовки для спинки и сиденья нужно отшлифовать. Все торцы досок также нужно обработать электрорубанком, желательно придать им скругленную форму.
Обработка доски
Шаг 2. Длинным задним ножкам лавки, которые дополнительно являются каркасом для спинки, нужно задать правильный угол наклона. Для этого нужно на две деревянные заготовки, имеющие длину 900 мм, нанести разметку.
Первой отмечается высота лавки — 400 мм. Этот отрезок доски в обработке не нуждается. Начиная от отрезка нужно по всей остальной длине доски сделать срез в 20 градусов, который и формирует угол наклона спинки скамейки. Срезы на двух задних ножках должны быть одинаковыми как по высоте, так и по углу наклона. Иначе скамейка окажется перекошенной.
Элементы каркаса
Шаг 3. Первыми в конструкции лавки собираются ножки. Расстояние между передними и задними ножками равняется 280 мм. Соединяются ножки брусом, который раскраивается на всю ширину лавки — на 500 мм. Желательно делать двойную обвязку — сверху и снизу.
Шаг 4. После того как две боковины скамейки собраны, можно соединить их между собой досками, предназначенными для сидения. Доски прикручиваются с помощью саморезов к верхним брусам обвязки. Желательно, чтобы между деревянными заготовками оставались равные по размеру зазоры — 1-2 см. Эти зазоры способствуют циркуляции воздуха и отводу влаги.
Крепление спинки
Шаг 5. Усиление конструкции скамейки. Чтобы садовая мебель оказалась устойчивой и долговечной, желательно усилить ее конструкцию. Для этих целей нужно сделать нижнюю обвязку по ножкам с помощью брусов. Две заготовки, имеющие длину 1500 мм, прикручиваются к передним и задним ножкам скамьи. Если пиломатериала не хватает, можно использовать одну поперечину, которая крепится к нижним брусам обвязки.
Шаг 6. Монтаж спинки скамейки. Скамья уже практически готова, остался последний штрих — крепление двух досок, выполняющих функцию спинки. Первую доску рекомендуется крепить на расстоянии 200 мм от сиденья. Вторую — на расстоянии 380 мм от сиденья.
Шаг 7. Финишное покрытие садовой мебели. Чтобы защитить древесину от воздействия окружающей среды, желательно использовать глубокую пропитку и лак. Пропитка защитит скамейку от влаги, плесени, насекомых-вредителей.
Лак придаст мебели красивый и нарядный вид. Чтобы придать дереву блеск, нужно хорошенько отполировать материал, и несколько раз покрыть заготовки лаком.
Фото скамейки с другого ракурса
Другие идеи
Можно сделать скамейку со спинкой своими руками из старых покрышек. Лучше всего устанавливать такие лавочки возле стены или, например, вокруг толстого большого дерева. Нужно уложить несколько шин в один ряд. На него кладут еще один ряд. Внутрь ставят деревянные бруски и фиксируют их при помощи стандартных крепежных элементов. Далее внутрь шин укладывают подушки или мягкий материал. Из покрышек также делают и спинки.
Если же скамейка установлена возле дерева, то его ствол будет служить для нее спинкой.
Можно собрать лавочки из пластиковых канализационных труб. Подойдут изделия диаметром 40-50 мм. Трубы и уголки собирают, подобно конструктору, в общую систему. Затем в качестве сидений на них натягивают плотную ткань. Можно сделать конструкцию, которая будет аналогичной деревянной лавке. В этом случае для спинки и сидения потребуется два матраса.
Красивые лавочки получаются из поперечных спилов больших деревьев. Если рядом с дачей есть лес, можно попробовать изготовить подобную скамью. Несколько спилов крепят на опорный брус. Такая конструкция покрывается прозрачным лаком. Она выглядит эффектно и необычно.
Варианты соединения
Планируя сделать скамейку, лучше заранее продумать способ соединения деталей, поскольку от этого во многом зависит выбор модели.
При работе с деревом наиболее рационально и выгодно (с точки зрения долговечности изделия) применять соединения врезкой (врубкой). При этом используется стыковка одного или нескольких шипов (гребней) и отверстий (пазов). На схеме ниже показаны различные способы соединения деревянных деталей.
Для скрепления (сращивания) досок и бруса можно применить предложенные ниже схемы.
Тем, кто хочет сделать соединение более оригинальным и при этом располагает фрезерным станком, можно предложить такие необычные способы соединения.
Если соединения такого рода («без единого гвоздя») слишком сложны для исполнения или не подходят к идее изделия, можно использовать более привычные и простые способы сборки – на саморезы и на гвозди.
При этом в обоих случаях можно для усиления конструкции использовать накладные металлические пластины, уголки и кронштейны.
Также рационально использовать комбинированные методы сборки – например, саморезы (шурупы) с вставкой деревянных штифтов и клиньев.































































