Архитектурные особенности мансарды
С расположением гаража в доме разобрались – теперь дошла очередь до мансарды. Этим термином называют помещения во внутреннем пространстве крыши, образуемом за счёт её конструкций и фронтонов (или щипцов).
- Разница между фронтоном и щипцом заключается в том, что фронтон ограничивается не только скатами крыши, но и отделяется от стены здания карнизом.
- Фронтон может иметь полуциркульную или трапециевидную форму.
- Щипец является естественным продолжением стены, которая, дойдя до определённой высоты, начинает сужаться, образуя треугольник. Крыша при этом обычно делается двухскатная.
- Как правило, щипец находится на торцевой стене, а фронтон – со стороны фасада.
- Есть ещё один архитектурный вариант – мезонин. Так называют надстройку в средней части крыши, представляющую собой полуярус.
- Он может быть и чисто декоративным элементом, но может образовывать комнатку, из которой есть выход на балкон. Смотрится такая крыша ну очень красиво!
Понятно, что треугольник, коим является щипец, имеет меньшую площадь, чем трапециевидный фронтон. Поэтому, и мансарда под такой крышей будет более скромной по объёму. Но это уже зависит от размеров и архитектурного облика здания в целом.
Функциональность чердачных помещений
В доме, предназначенном для постоянного проживания, просторная мансарда может решить много вопросов – от размещения в ней гостиной с камином, до устройства санузлов или бойлерной.
Как видите, в мансардном этаже можно расположить помещения с абсолютно разным функциональным назначением, кроме, разумеется, прихожей. В мансарде даже можно установить и камин, что даст возможность уменьшить протяжённость дымохода, а соответственно, сэкономить на этом.
Ведь совсем не обязательно возводить помпезное кирпичное сооружение, а можно отдать предпочтение современной металлической печи, которую мы и видим ниже.
Камин в мансарде
Достоинства и недостатки мансарды
Наряду с заглубляемыми помещениями, мансардный этаж тоже требует тщательной проработки его устройства и отделки. Разница только в том, что подвальные и цокольные конструкции контактируют с грунтом, подвергаясь его давлению, и на них воздействует почвенная влага, а крыша подвергается значительным ветровым нагрузкам и обильно увлажняется за счёт дождя и снега.
- Во втором случае, есть одно обстоятельство, которое обязательно должно учитываться. Из-за отопления, пользования водой, приготовления пищи, внутри дома образуется пар. Он всегда поднимается кверху, и из-за разницы температур с внутренней и внешней стороны стен и кровли, конденсируется.
- Это может негативно повлиять как на состояние отделки, так и на конструктивный материал в целом. Поэтому, вопрос изоляции по отношению к мансарде, стоит не менее остро, чем по отношению к подвалу.
- Необходимость монтажа многослойных пирогов на стенах и потолке мансарды увеличивает, конечно, себестоимость строительства — но не настолько, чтобы превысить стоимость полноценного второго этажа.
Чтобы в помещениях мансарды не гуляли сквозняки, и температура воздуха была комфортной и зимой и летом, её стены и потолок, который по совместительству является и кровлей, делается многослойным. Выглядит это примерно так, как это показано на фото снизу.
Структура крыши, являющейся потолком мансарды
Здесь мы видим вариант с однослойным утеплением, когда теплоизоляционные плиты закладывают в ячейки между стропилами. С двух сторон утеплитель защищается мембранами, прижимаемыми к стропильным балкам обрешёткой, по которым снаружи монтируется кровельный материал, а изнутри производится обшивка листовым или длинномерным материалом.
Схема с двойным утеплением
Но чаще всего, одного слоя утеплителя бывает недостаточно, поэтому, как под кровельное покрытие, так и под внутреннюю обшивку (а лучше и туда, и сюда), может быть заложен дополнительный слой теплоизоляции. Если не стараться на этом экономить, в мансарде будет тепло зимой и прохладно летом.
Схемы могут быть разными, так как всё зависит от конфигурации стропильной системы. Один из вариантов двойного утепления показан на картинке сверху.
Бесплатные проекты одноэтажных домов — чертежи и фото
Выбрать план будет проще, если заранее продумать основные требования, которым должен соответствовать одноэтажный дом. Так вы сможете найти вариант, полностью соответствующих им.
Одноэтажные дома с гаражом
Зачастую хозяева начинают строительство и только потом вспоминают, что место для гаража не предусмотрели. Оставлять машину во дворе непрактично. Лучшим вариантом обеспечить автомобилю безопасность — строительство по проекту одноэтажного здания с встроенным гаражом. Он может отапливаться или нет, но точно защитит от преступников и неблагоприятного воздействия атмосферных осадков.
Одноэтажные дома с мансардой
Увеличить внутреннее пространство можно за счет возведения мансарды. К тому же, она придаст дому индивидуальности. На верхнем уровне можно расположить спальни, тренажерный зал, комнату отдыха. Стоит отметить, что возведение мансарды потребует больших затрат на разработку проекта и строительство.
Одноэтажные дома с террасой
Такой вариант придется по вкусу любителям проводить много времени на природе. Открытая площадка на свежем воздухе позволит с комфортом разместиться за чашкой кофе или чая. Такой план будет особенно актуален, если планируется строительство здания для летнего проживания.
Одноэтажные дома с тремя спальнями
Для семей с двумя разнополыми детьми подойдут эскизы, в которых предусмотрено три спальни. Таким образом, все будут обеспечены личным пространством. В своей комнате каждый сможет заниматься любимым делом. Также такой проект подойдет в случае, если часто возникает необходимость размещать гостей на ночлег. Наличие дополнительных спален позволит разместить всех с комфортом.
Одноэтажные дома из кирпича
Преимущества самого популярного материала для строительства: стильный внешний вид, прочность, устойчивость к перепадам температур. Из него можно построить коттедж любой площади и формы. Единственный недостаток — высокая стоимость.
Одноэтажные каркасные дома
Спрос на проекты зданий, строительство которых выполняют по каркасной технологии, растет с каждым годом. Это обусловлено простотой и скоростью возведения, а также невысокой стоимостью строительных материалов. Могут иметь разную площадь и форму. Возможность использовать для облицовки одновременно несколько видов декоративных материалов, что позволяет создать по-настоящему уникальное одноэтажное здание.
Одноэтажные дома из пеноблока
Прекрасная, менее затратная альтернатива кирпичу. Пеноблок прост в монтаже, подходит для строительства на грунте с низкими несущими свойствами, отличается хорошими шумо- и теплоизоляционными свойствами. Нуждается в дополнительной облицовке. Использование разных отделочных материалов позволяет сделать фасад оригинальным.
Благодаря бюджетности, планы домов небольшой площади пользуются огромной популярностью, но не отличаются индивидуальностью. Каждый человек, решивший строить собственное жилье, может найти в интернете уже готовый бесплатный проект одноэтажный проект с чертежами и фото, обратиться к архитектору, чтобы он откорректировал выполненный план с учетом его пожеланий.
Варианты проектов дачных домов
Наиболее востребованы проекты из бруса, бревна или предполагающие строительство по каркасной технологии. Для тех, кто отдает предпочтение капитальным строениям, подойдут типовые проекты блочных домов, дач из газосиликатных блоков, керамзитобетона. Лидерами спроса являются одноэтажные мини-дачи, домики с мансардой, гаражом из поликарбоната. Готовые дачные проекты адаптируются под запросы конкретной семьи.

Проект небольшого одноэтажного дома
Загородный дом скромных размеров обеспечит комфортное пребывание в нем. Компактная дача в одном уровне предусматривает наличие камина внутри, крытой террасы снаружи. При планировании отпуска всей семьей можно выбрать проект, где спальня будет на втором уровне. При наличии средств, выбирают вариант, позволяющий круглогодичное проживание. Ценители современного стиля остановятся на дизайне с плоской кровлей.
Дом среднего размера
Обычно это строение классической формы, примерно 10х10 с простыми формами и двускатной кровлей. Предусмотрена закрытая кухня и крытая терраса. Кроме дополнительной комнаты, которую можно превратить в библиотеку, кабинет, гостевую, есть техническое помещение для инструмента, садовой техники. К спальне, расположенной на мансарде, примыкает балкон. Чтобы сохранить тепло в зимнее время, предусматривают тамбур.
Строение большого размера
Если имеется многочисленное семейство, постройку планируется использовать как жилую и не только летом, строят капитальный дом из оцилиндрованного бревна, бруса, разрабатывают проект кирпичного дома с утеплением мансарды или даже полноценным вторым этажом. Первый этаж занимает кухня, гостиная. Санузел обычно располагают здесь же. На втором этаже планируют спальни, возможный кабинет или иные помещения.
Дом с мансардой
Возможен летний и зимний вариант. Для круглогодичного использования дома мансарду оставляют без утепления, утеплив лишь первый этаж и сделав герметичным вход между двумя уровнями. Чтобы увеличить свободное пространство мансарды, немного приподнимают стены, а крышу делают не двускатной, а ломаной.
Дом с террасой
Крытая терраса очень удобна для посиделок летними вечерами, занятий с семенами, рассадой. Ее план может быть разработан вместе с планом дома и предусматривать общий фундамент. Чаще всего ее пристраивают позднее на отдельном столбчатом, свайном фундаменте. Кровля также монтируется отдельно. Поверх фундамента укладывают деревянный настил, находящийся выше поверхности земли. Конструкция всегда открытая.
Дом с застекленной верандой
Веранду удобнее строить в одно время с домом, т.к. отдельный фундамент позволит прихватить не более 2 м. Веранда может примыкать к 1-2-3 стенам. Ее частично или полностью остекляют, получая дополнительное помещение, где оборудуют гостиную, кухню, спортивный уголок. В летнее время окна можно полностью распахнуть. Если пристройка не планируется для жилья, ее оборудуют недорогой односкатной крышей, гармонирующей с общим дизайном.
Дом с гаражом
Гараж, пристроенный к дому или размещенный на цокольном уровне, позволит значительно сэкономить место. При такой планировке стоит заранее продумать, где расположить дверь в помещение, чтобы на веранду или прихожую не проникали пары бензина.
Двухэтажный дом
При скромных размерах участка имеет смысл увеличить жилую площадь дачи за счет второго этажа. Нагрузка на фундамент при этом увеличивается незначительно, процентов на 60. Полы и кровля также не отберут лишних средств. Потратиться придется на межэтажные перекрытия и стены.
Дачный дом с баней или сауной
Отдельное здание обойдется дороже, поэтому вариант с пристройкой более выгоден. Даже при одновременной постройке жилого строения и бани, они ставятся на разные фундаменты, а стены между ними тщательно изолируют во избежание трещин. Еще лучше, если между помещениями будет предусмотрен коридор-переход или хотя бы навес. Принимающим водные процедуры будет сложнее простудиться, а стены дома будут хорошо гидроизолированы. Если баня или сауна примыкают к дому, у смежной стены со стороны дома можно выстроить печь. Жилью полезнее, банное помещение быстрее просохнет.
Дом с эркером
Фигурные выступы различных форм будут органичны только в проектах с особенной архитектурой. Их пристраивают уже после постройки основного здания. На дополнительной площади располагают зимний сад или кабинет. В качестве фундамента выступают консольные плиты. Их встраивают в несущую стену, ее предварительно усиливают.
Проекты домов с мансардой и гаражом: отличительные черты коттеджей
Дом с мансардой – фото наглядно отображают различные варианты – является наиболее рациональным решением для небольшого участка, позволяющим увеличить жилую площадь без сокращения земельных угодий. Наличие личного транспорта становится причиной еще одного популярного приема – строительства дома с гаражом.

Проект дома с мансардой и гаражом для одного автомобиля
Проекты коттеджей с гаражом и мансардой обладают рядом преимуществ:
- благодаря совмещению двух функциональных зон удается снизить затраты, связанные с разработкой проекта и выполнением строительных работ;
- смежное расположение жилой зоны и гаража создает комфортную обстановку в последнем, что приводит к снижению затрат, связанных с отоплением гаража;
- создание внутреннего прохода позволяет беспрепятственно перемещаться из комнаты в гараж, не выходя на улицу, что особенно удобно в период ненастья;
- создание мансардного помещения обеспечивает увеличение жилой площади, что особенно актуально для одноэтажных построек;
- компактное многофункциональное сооружение позволяет существенно сэкономить свободную площадь земельного участка;
- строительство мансарды обойдется значительно дешевле, чем возведение второго этажа;
- мансардный этаж позволяет дополнительно утеплить жилое помещение, избавив его от сквозняков;
- пристроенный гараж будет стоить намного меньше, чем отдельно стоящий элемент;
- строения имеют стильный и презентабельный внешний вид, заметно выделяющий их на фоне других построек.
Типовые проекты построек из бруса
Наибольшей популярностью являются сейчас проекты садовых домиков из бруса. Чаще всего такие дома имеют один этаж, иногда с мансардой. Построены эти дома на малозаглубленном фундаменте. Не очень устойчивы к механическим воздействиям, а также к постоянно меняющейся погоде. Основным материалом служит деревянный брус 150*50, 75 мм. Данный материал очень хорошо подходит для возведения домов не только по ценовой политике, но и для угловых соединений в полдерева.
В домах из бруса используется сухая доска для пола и для потолка. Данные садовые домики быстро нагреваются и долгое время держат тепло, что является немаловажным, если на даче отдохнуть в зимнее время.

Варианты планировки
Наличие мансарды позволяет вынести наверх часть жилых помещений – а дальше все зависит от твоих нужд. Это может быть спальня и детская, гостевая комната и гостевой санузел, творческая мастерская или рабочий кабинет, комната для отдыха или домашняя библиотека. А вот функциональные помещения, вроде кухни, гостиной, столовой и основного санузла традиционно оставляют внизу для удобства.
Технические помещения тоже лучше снести вниз или даже в подвал – например, бойлерную или кладовку. А еще к дому с мансардой легко пристроить гараж или сауну. Это можно эффектно обыграть кровлей необычной конфигурации – нужно только грамотно подобрать изоляцию и материалы.
Проекты домов с мансардой и гаражом: советы при постройке
Французские окна в дизайне двухэтажного дома
Чтобы надстроенная комната не покосилась, а стены, потолки не трескались и не протекали нужно соблюдать некоторые правила:
- стены нужно устанавливать исключительно на несущие опоры. Для выступающего помещения за пределы стен основного здания, нужны дополнительные опоры;
- спасением от сильного ветра станут несущие конструкции, выполненные из особо прочных материалов – дерева, бетона, металла;
В проекте домов с мансардой и гаражом необходимо уделить особое внимание прочности конструкции
- помещение полностью (крыша, пол, стены) нужно утеплять негорючими материалами;
- окна желательно располагать на южной стороне дома;
- высота потолков должна быть такой, чтобы человек мог ходить, не сгибаясь в три погибели.
Великолепный особняк в терракотовом цвете
Самые распространенные ошибки при строительстве:
- слой утеплителя укладывается с учетом климатической зоны;
- зазоров в утеплителе не должно быть;
- не рекомендовано применять утеплитель для горизонтальных поверхностей;
- в местах, где утеплительный материал примыкает к стенам, его контур должен быть замкнут.
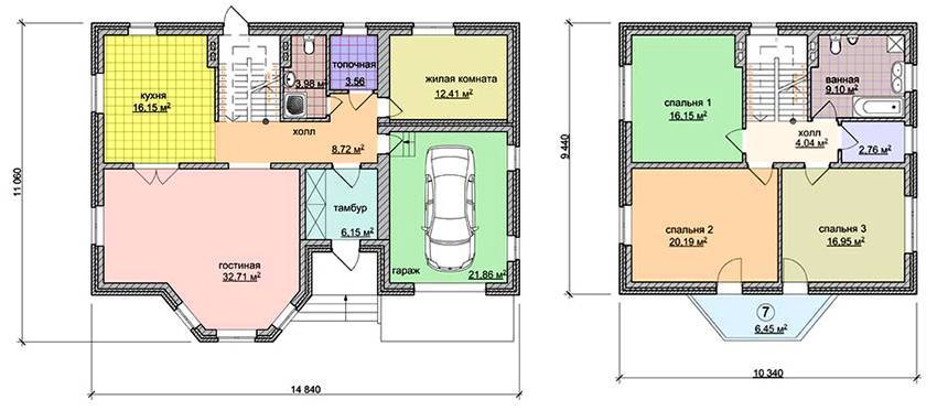
Проект одноэтажного дома в современном стиле с мансардой и гаражом на 2 машины
План первого этажа
План мансардного этажа
Учитывая все особенности построек с мансардами, приходится констатировать, чтобы строения надежно служили долгие годы, их должны строить специалисты.
Материалы для строительства
Материалы для твоего дома должны быть в первую очередь теплыми, иначе в результате ты потратишь на отопление больше, чем на теплоизоляцию. Не забывай про слой минеральной ваты, пенопласта или другого утеплителя. Этим должны заниматься профессионалы, которые смогут просчитать расположение точки росы, чтобы конденсат не скапливался между стеной и изоляцией.
Кирпич красивый, долговечный, удобный и прослужит до ста лет, но он тяжелый, его долго укладывать и нужен крепкий фундамент. Пористые керамоблоки проще в укладке и больше по размеру, но чувствительны к повреждениям и дороже.
Газобетонные блоки не горят и хорошо защищают от мороза и шума, но при неправильном обращении могут трескаться и ломаться. Дерево – полностью натурально и экологично, но дает усадку и требует специальной обработки от гниения, огня и вредителей.
План одноэтажного дома: достоинства и недостатки конструкций
План одноэтажного дома можно продумать самостоятельно, если обладаете определенными техническими знаниями, или обратиться к профессионалам и заказать готовый проект. Любой из выбранных способов должен включать не только схематичный рисунок, но и точные размеры несущих стен, внутренних перекрытий, типа крыши и материалов для строительства.
Стиль Хай-тек: красота и аккуратность
На основе плана одноэтажного дома составляется смета. Если обращаетесь в строительную организацию и заказываете возведение коттеджа под ключ, то дополнительно составляется договор со сроками работ и итоговой стоимостью.
Вот несколько примеров планов одноэтажных домов с фото и описанием:
| Фото | Краткое описание | Стоимость постройки с работой мастеров, руб. |
| Проект «Басня» с общей площадью в 124,7 м², из которых жилая составляет 116,9 м². Железобетонный фундамент, а стены из бетонных блоков с утеплителем из пенополистирола. Перекрытия выполнены из деревянных балок с уплотнением из минваты, а крыша – двускатная из металлочерепицы | 2060000 | |
| Проект одноэтажного дома с мансардой и гаражом. Общая площадь – 164,4 м². Габариты гаража 11 на 16 м, подвал не предусмотрен, так же как и цоколь. Входит в план столовая, ванная, санузел, терраса, лоджия, гараж, коридор, и 4 спальни. Подходит для большой семьи. | От 2000000 в зависимости от выбранного материала | |
| Планировка одноэтажного дома площадью 150 кв. м. Дом с гаражом,ванной и 4 спальнями. Рассчитан на участок небольшой площади, при этом подходит для большой семьи. Выбор материалов индивидуален. | От 2030000 |
Выбирая подходящий готовый проект и заказывая возведение дома, учитывайте сколько членов семьи будет проживать под одной крышей и оставляйте запас на возможное пополнение.
Достоинства и недостатки одноэтажных домов
Разбираясь в теме строительства, у каждого проекта найдутся свои плюс и минусы. Если не отталкиваться от выбранного материала, то среди одноэтажных домов выделяют несколько общих преимуществ:
Вариант с четырьмя спальнями
- конструкции в один этаж безопасны для проживания детей и пожилых людей;
- правильное распределение комнат позволит комфортно проживать сразу нескольким поколениям семьи под одной крышей;
- нет эффекта «хождения по головам»: никакого шума от перемещения по второму этажу не будет;
- на само строительство и подготовку проекта уходит значительно меньше времени, чем на многоуровневые конструкции;
- за домом легче и проще ухаживать;
- большое разнообразие дизайнерских решений во внешней отделке.
Выделяют и несколько отрицательных моментов, связанных с выбором одноэтажного плана для дома:
Современный вариант с небольшим прудиком перед входом
- размер участка напрямую влияет на габариты строения;
- стоимость одного этажа может превысить цену за дом в два уровня: обусловлено большими затратами на заливку фундамента, увеличением площади кровли и большей длиной инженерных систем.
Одноэтажные дома могут быть расширены в процессе эксплуатации, что является несомненным плюсом, склоняющим многих людей к постройке именно таких коттеджей.
Особенности двухэтажного дома с мансардой
При строительстве двухэтажного здания можно организовать уютное помещение и в области мансарды. Эта зона может быть утеплённой и эксплуатируемой круглогодично. И также востребован вариант только летнего использования чердачного пространства. В первом случае требуется тщательное утепление и гидроизоляция кровли, а во втором обустраивают основные паро- и гидроизоляционные слои крыши под кровельным материалом. В любом случае двухэтажный дом, дополненный функциональной мансардой, является комфортным зданием с большим количеством полезной площади.
Фасад может быть оформлен любым образом в соответствии с выбранным стилем дизайна
Проектирование двухэтажного строения с жилым чердачным помещением требует более тщательного расчёта, чем разработка проекта одноэтажного здания. Обусловлено это тем, что в случае с двухэтажным домом нагрузка на фундамент больше, чем в другом варианте. Поэтому для покрытия кровли, обустройства мансарды используют лёгкие, прочные и качественные материалы, а монтаж и планировка выполняются согласно чертежу.
На первом этаже часто размещают основные помещения, облегчая планировку второго и мансардного этажей
Размеры помещений в готовых проектах могут быть изменены без кардинального влияния на несущие конструкции. Таким образом, можно создать комфортный жилой дом с учётом индивидуальных пожеланий и обеспечить надёжность помещений второго этажа.
На втором этаже часто размещают комнаты отдыха
Двухэтажный дом с мансардой возможно построить на узком участке. Наличие двух этажей и функционального чердачного помещения обеспечивает практичность и удобство здания.
Проекты одноэтажных домов с гаражом
Найдено проектов: 141
Красивые проекты одноэтажных домов с гаражом
Одноэтажный дом с гаражом уже давно стал неотъемлемой частью загородной жизни. Застройщику главное определиться, какие стоит выбирать проекты одноэтажных коттеджей: с гаражом встроенным или отдельно стоящим. На выбор проекта в большей степени влияет размер участка под строительство и его индивидуальные особенности. Правильно спроектированные и реализованные жилые дома с встроенным гаражом более удобны и комфортны, но занимают на участке больше места. Особенно это касается одноэтажных домов, гараж к которым пристраивается сбоку. Для таких домов требуются широкие участки. Если же земельный надел застройщика как раз неглубокий и широкий, то частный дом с гаражом наоборот будет лучшим решением и позволит сэкономить место на участке.
Планы проектов одноэтажных домов с гаражом: преимущества
- Экономия . Выбирая одноэтажный дом с пристроенным гаражом можно сэкономить на одной стене и фундаменте под ней. Если выбрана планировка одноэтажных домов с гаражом полностью встроенным в корпус дома, то помимо стен сэкономить можно еще и на кровле. При этом для возведения стен гаража можно использовать более бюджетные материалы. Прокладка системы водопровода, отопления и канализации в такой гараж также обойдется дешевле, чем в отдельно стоящее помещение.
- Комфорт . Одноэтажные дома с гаражом обеспечивают более быстрый и комфортный перенос габаритных вещей в дом.
В 2021 году наш каталог пополнили новые проекты одноэтажных домов с гаражом (фото, чертежи, схемы, видео, эскизы помещены на сайте в этот раздел), купить которые можно по среднерыночным ценам. Если из готовых проектов коттеджей клиенту не удалось выбрать для реализации под ключ подходящий вариант, то специалисты могут разработать авторский план дома одноэтажного с гаражом. При необходимости может быть просто изменена типовая планировка проектов одноэтажных домов с гаражом. Так же за дополнительную стоимость специалисты создадут оригинальный дизайн одноэтажных домов с гаражом.
Размеры жилых построек
Самые маленькие жилые дачные постройки имеют размер 4 на 4 м, домики меньшей площадью делать нет смысла. Планировка в этом варианте очень проста – одна комната.

Друг от друга такие домики могут отличаться только количеством окон и расположением по отношению к сторонам света. Двери желательно размещать посредине или с торца здания. Площадь около 16 квадратных метров.
Постройка размером 6 х 3 м. будет чуть больше, примерно 18 квадратных метров. В планировку уже можно включить место для приготовления пищи.

Вышеперечисленные варианты вряд ли являются оптимальными. Гораздо более востребованы у дачников брусовые или бревенчатые домики размером 6 х 3 м. Объясняется это просто – длина бруса (бревна) составляет шесть метров.

Кроме того, в домике уже можно спроектировать небольшую кухню. В дачном домике размером 6 х 4 м. можно построить небольшой тамбур (или санузел).

Если же говорить о жилых зданиях 6 х 4 м., то вполне реально разместить еще одну комнату или гостиную.

Характерные особенности домов до 40 кв. метров
Жилые здания со скромной площадью обычно одноэтажные, реже имеют второй этаж или мансарду. Все свободное пространство внутри используется максимально рационально, поэтому в таких постройках стены и межкомнатные перегородки устанавливаются с прямыми углами. Материалы, используемые для этого типа сооружений:
- газобетон;
- дерево;
- каркасные панели;
- кирпич;
- комбинация нескольких стройматериалов.
Проект маленького дома, хоть и разрабатывается миниатюрным, но не теряет уюта. Обеденная зона группируется в виде студии, а для спальни отводится самое удаленное место:
- в конце прихожей;
- на мансарде;
- с противоположной стороны от кухни.
Компактность конструкции оказывает влияние и на планировку – все функциональные помещения минимизируются, а мебель и техника для экономии пространства используется встроенная. В санузлах вместо ванны чаще всего монтируется душевая кабина. В качестве альтернативы привычным шкафам служат скрытые в стенах модули и шкафы-купе.
Коттедж небольшого размера рассчитан на двоих-троих жильцов. Этот вариант проекта оптимально подойдет молодой семье с ограниченным бюджетом или пожилой паре, которой сложно ухаживать за большим домом. Построить небольшой брусовый домик для дачи будет стоить дешевле возведения кирпичной постройки. А при большем бюджете можно соорудить современный маленький замок из дерева.
Устройство внутреннего помещения
Если вы задумали сделать мансарду из чердака, то необходим расчет всех нагрузок на первый этаж. Правильным будет дополнительно укрепить стены. Не перегружайте верхнюю часть конструкции. Допустима планировка из нескольких комнат или зон. Для перегородок, к примеру, можно взять гипсокартон. Материалы кровли и отделки стен выбирайте легкие. Под крышей можно устроить уютные детские или спальные комнаты. Некоторые предпочитают отдавать мансарду под мастерскую, бильярдную или даже сауну.
Так как помещение под крышей будет подвержено перепаду температур — позаботьтесь о хорошей теплоизлялции.
Достаточно затратно обойдется монтаж оконных проемов на наклонной плоскости. Но результат заставит забыть эти трудности. Большие окна дадут хорошее естественное освещение днем, а ночью можно запросто любоваться звездным небом.
Разнообразие стилей и направлений
Обычно, проекты домов с мансардой и гаражом выполнены в современном стиле. Так называемый арт-деко, не предусматривает соблюдения каких-либо канонов. Здесь абсолютная свобода в выборе материалов для постройки и элементов отделки.
Основные разновидности современного стиля:
- Функционализм (присутствие больших стеклянных поверхностей, крыши чаще всего плоские, отсутствуют излишества в украшении фасада и мелкие элементы)
- Минимализм (соблюдение единой цветовой гаммы, простота выполнения, но при этом максимальная функциональность)
Авангард, хай-тек и деконструкцивизм только недавно начали набирать популярность. Очень интересными и необычными смотрятся здания в стиле эко-тек. Где в формах дома есть части живого ландшафта.
Кантри-дома повторяют своим внешним видом традиционное жилье в провинциях разных стран мира. Очень эффектно смотрится итальянская классика с террасами и широкими ставнями на окнах. Бревенчатые строения шале, кирпичные фасады английского стиля — изысканы и неповторимы.
Каким именно будет ваш проект дома с мансардой и строительством гаража выбираете вы сами. Красочные фото и планы из каталогов на сайтах должны вдохновить на принятие верного решения.
Проекты двухэтажных домов с гаражом
В современном домостроительстве проекты двухэтажных домов с гаражом получили большую популярность
Типовые проекты двухэтажных домов с гаражом в большом количестве, на любой вкус предлагаются многими строительными фирмами. Владельцу земельного участка под строительство остается только выбрать понравившийся. Хорошо, если участок большой, тогда экономить пространство не приходится. Но бывают участки довольно узкие, кажется, что построить на нем дом своей мечты просто нет никакой возможности. Но это не так. Проекты для зданий с гаражом на таких участках тоже есть.
Интересный двухэтажный дом с мансардой и просторным гаражом
Белоснежный особняк, расположенный на склоне
Особенности для узких участков:
- одну стену возводят «глухой», то есть – без окон. Это позволяет расположить здание как можно ближе к межевой границе участка с соседями;
- хозяйственные постройки рекомендуется размещают вдоль продольных стен. Таким образом, спальни, гостиные, другие комнаты, требующие яркого освещения, располагаются в торцах, их естественное освещение – максимальное;
- вход – фронтонный или с торца, что тоже позволяет сэкономить место, выстроив крыльцо или небольшую веранду;
- если здание выходит на шумную магистраль, его можно оградить зелеными насаждениями, а гараж выстроить у фронтальной части участка. Так он не будет занимать много пространства;
- обо всех дополнительных инженерных системах желательно подумать заблаговременно (скважина, освещение и т.д.), еще до начала строительства, чтобы не пришлось выкладывать дополнительные средства. Ведь изменения в уже утвержденном проекте потребуют дополнительной оплаты.
Классический загородный дом с прекрасной террасой
Ну и какая же усадьба без сада? Чтобы он был красивым, оригинальным, ландшафтные дизайнеры советуют разделить по зонам арками, шпалерами, зелеными насаждениями. Однако зоны должны не полностью изолироваться одна от другой. В противном случае участок превратится во множество, пускай уютных, но тесных уголков.
Итог
При проектировании дома с мансардой и гаражом необходимо учитывать большое количество особенностей и нюансов
В подобном здании нет несущественных мелочей, поэтому важно учесть любые нюансы – материал для стен, тип крыши, разводку коммуникаций, размер участка, строительный регламент и нормативы и тысячи других мелочей
Именно поэтому стоит обращаться в специализированные фирмы, где работают действительно опытные специалисты. Они обеспечат соблюдение все, даже наименьших нюансов, оставив заказчику самое интересное – выбор красивого проекта дома, в котором действительно комфортно и уютно жить.





































