Комната для девочки
На следующем фото видно, как сильно отличается интерьер комнаты школьника девочки от мальчиковой «берлоги». Пространство оформляется в нежных тонах, обязательно присутствуют цветочные композиции. Краски могут быть разными, но основа всегда одна – белый цвет с молочным, с бледно-розовым отливом, с оттенком слоновой кости. В пару к нему хорошо подходит сиреневый, пастельный синий, мягкий желтый цвет.
Комната для подрастающей красавицыИсточник yandex.net
Если детская большая, производить зонирование лучше при помощи перегородок. Они помогут отделить рабочее место от спальни и игровой. Хорошо смотрится в девичьей комнате подиум. Хозяйка даже во взрослом виде будет ощущать себя принцессой, которой хочется всегда демонстрировать свою красоту. Подиум – лучшее, что можно для этого придумать.
Подиум для девочек как сцена для принцессИсточник yandex.net
Немыслим дизайн комнаты для школьника девочки без большого количества текстиля. Кровать обязательно укрывается балдахином, он выполняется из легких прозрачных тканей или из плотного материала. Такое решение позволяет формировать эффект кокона, убежища, внутри которого спокойно, тихо и очень комфортно. На кровати ажурные простыни и красивое покрывало. На окнах занавеси с рюшами и драпировками. Вышивки, аппликации, блестки – использовать можно все, что поможет дополнительно украсить ткани и придать комнате более декоративный внешний вид.
Кровать с красивым балдахином может появиться только в комнате девочкиИсточник yandex.net
Наполнение мебели практически такое же: рабочий стол, удобная кровать. Девочкам плохо подходит ярусная меблировка. Но если в душе девочка – настоящий сорванец, можно рассматривать покупку кровати чердака.
Вместо спортивного уголка в игровой зоне может появиться небольшой раскладной диванчик с яркой обивкой с ворохом подушек, одетых в разные наволочки. Маленьким кокеткам нужно следить за своей красотой, поэтому в их комнате обязательно должен появиться туалетный столик и зеркало с правильно организованной подсветкой.
Трюмо с зеркалом обязательный атрибут мебели деткой для девочкиИсточник pleyshop.com
Вместительная система хранения, которая позволит поместить большое количество вещей, еще один обязательный пункт в мебельном оснащении комнаты
Важно иметь шкаф, комод, книжные полки
У девочек вещей больше, чем у мальчиков, поэтому система хранения для вещей должна быть более вместительнойИсточник i0.wp.com
Если комната небольшого размера, возникнут трудности с размещением мебели, но проблема эта решается покупкой трансформеров, складывающихся и раскладывающихся предметов, готовых систем, которые помогают рационально использовать каждый сантиметр свободного пространства.
Видео описание
В видео показаны 100 идей дизайна комнаты для девочки:
Комната для двух детей
Для оформления такой детской нужно приложить огромные усилия
Важно при этом никого не ущемить в правах, поэтому для детей близкого возраста и одинакового пола зонирование производится по принципу симметрии. Одному кровать, и другому такую же
Одному шкаф, и другому такой же. Одному стол со стулом, и другому равноценное рабочее место. Никого не выделяем, всем поровну. Иначе будет постоянная война за лучший уголок.
Симметрия – лучший принцип оформления детской для двух или трех детейИсточник yandex.net
Если комнату делит мальчик и девочка, можно пространство делить перегородкой и каждую половинку оформлять по-своему, но с одинаковым набором мебели. Когда пространство маленькое, разграничение пространства производится цветом.
Видео описание
В видео приведены примеры оформления детских комнат для двух девочек:
Коротко о главном
Любая детская – пространство, в котором ребенку должно быть удобно, спать, играть и учиться. Поэтому в комнате должна обязательно появиться кровать, письменный стол со стулом, уголок для отдыха. Наличие трех зон требует организации хорошего освещения.
Оформление (выбор стиля, цветовой гаммы) во многом зависит от пола ребенка, от его возраста, вкусовых предпочтений. Комната мальчика должна быть мужественной. Помещение для девочки нежным, романтичным, немного мечтательным.
Виды отделочных материалов в комнате для мальчиков
При покупке следует исходить из безопасности и практичности используемых для детской комнаты материалов. Это гораздо важнее красоты. Ничто не должно угрожать здоровью ребенка. Кроме того, мальчики не будут сидеть спокойно на одном месте, поэтому сохранить ремонт в первоначальном виде не удастся.
Самый легкий вариант для стен – это обои. Однако их придется часто менять, поэтому лучше остановиться на более практичных материалах, за которыми легко ухаживать. Моющие и обычные обои подойдут для взрослых и спокойных детей, в остальных случаях желательно выбрать декоративную штукатурку, стеклообои или просто покрасить стены краской нужного цвета.
Жидкие обоиИсточник septfon.ru
Можно отделать стены ламинатом или МДФ-панелями, если это соответствует общей концепции оформления. Для отделки небольших участков подойдет фреска с тематическим рисунком. Для малышей можно наклеить обои-разукрашки.
Для пола рекомендуется выбрать ламинат, линолеум, дерево. Не нужно покупать ковролин, он накапливает пыль и грязь. Натуральный паркет также будет непрактичным решением.
Некоторые современные родители выбирают пол из керамогранита с электрическим подогревом.
Яркая детская для дошкольниковИсточник imperiya-pola.ru
Потолок должен быть однотонным и матовым. Подходит обычная покраска или натяжной потолок. Гипсокартон подойдет для потолка, но для стен его выбирать не следует, так как он легко повреждается во время игр.
В стиле минимализмИсточник www.topdom.ru
Кроме люстры для центрального освещения необходимо купить безопасные осветительные приборы в рабочую и игровую зоны.
Мебель также должна быть изготовлена из экологичных и натуральных материалов, которые при этом выдерживают повышенные нагрузки, ведь мальчики постоянно бегают и даже дерутся. Следует избегать острых выступов, грубых необработанных деревянных деталей, заусенцев. Допустимо приобретать мебель с фасадом из цветного пластика.
Важно обратить внимание на устойчивость, способы крепления полок и мебели
Мебель в комнату для мальчика
В детской для мальчика в 9 кв.м довольно сложно разместить всю необходимую мебель, но вполне возможно. Для начала нужно расставить приоритеты в выборе элементов интерьера. Самой главной в комнате подроста является рабочая зона. Сюда относятся стол, стул и всевозможные полки. Существенно сэкономит пространство узкий, но длинный стол. Его хорошо размещать вдоль окна. Полки вешаются на стену непосредственно над столом или над спальным местом. Желательно приобретать открытые полки (не забываем, что главная задача – визуально расширить пространство детской). Стул должен быть компактный и удобный.
Без шкафа тоже не обойтись, поэтому по мере возможности он должен быть максимально узкий и высокий. Дверцы обязательно с зеркалами.
Что касается спального места, то в маленькой детской лучше поставить диван-кровать. В сложенном виде он освобождает место в комнате мальчика, да и во время встреч с друзьями, есть где посидеть и пообщаться.

Для двоих разнополых детей
В прямоугольной комнате, где вход в углу, участки для отдыха и учебы располагают зеркально. Их выделяют разными цветами, используют для разграничения потолочные конструкции.

Столы для занятий ставят с двух сторон у окна. В детской для двоих 15 кв. м. кровати располагают у стены в центре комнаты. Напротив входа будет встроена вместительная система хранения.


Если сместить зону учебы вглубь помещения, то придется предусмотреть хорошее освещение даже в дневное время. Большая система хранения находится у стены напротив окна. Кровати ставят с двух сторон у оконного проема. Между ними поместится журнальный стол.

Если вход расположен напротив окна, то с двух сторон возле него ставят кровати. Все остальные предметы расставляют буквой «П». Для детской комнаты заказывают и выдвижные конструкции, которые легко скрываются под подиумом.

В дневное время освобождается большая территория для игр. С двух сторон у входа устанавливают шкафы-купе. Их соединяют вверху небольшой системой хранения. Создается впечатление, что над входом находится арка.







Для мальчика
Комната для мальчика точно так же оформляется в соответствии с его возрастом, как и обустройство комнат для девочек. Малышу не нужно много книжек, большие шкафы, диван или огромные стеллажи. Маленькое и узкое помещение в 12 квадратов хорошо подходит для того, чтобы соорудить для ребенка спальное место прямо у окна.
На стены достаточно повесить немного легких полочек. Вся остальная площадь будет отдана мальчику под игровую зону. Она обустраивается теплым и мягким ковром, корзинками с игрушками, мини-стульчиком, столиком с конструктором или альбомами, красками и карандашами.
Для мальчика постарше можно подготовить и интерьер построже. Здесь уже может стоять диван, который будет выглядеть массивнее кровати. Вместо занавесок используют жалюзи. Обязательно наличие шкафа, письменного стола, книжных полок, стула-кресла на роликовых опорах. Декорировать можно все любыми тематическими картинками.
Выбор стиля
Когда планируется дизайнерский проект для жилища мальчика, его детская комната 12 кв.м необязательно должна быть выполнена в одном каком-то стиле. Можно соединить два или более направлений. Можно придерживаться исключительно той тематики, которая наиболее близка ребенку.
Малышу все равно, в каком стиле будет его колыбель. Скорее, это интересно его родителям. Хотите, сделайте все в минимализме с нотками романтики. Этот стиль наиболее оптимален для детской комнаты, в котором будет жить новорожденный. Он удобен еще и тем, что после него легко перестраивать комнату для уже подросшего ребенка.
Дизайн комнаты для мальчика может быть выполнен в стиле смягченного конкретной тематикой конструктивизма. Здесь преобладают геометрические форму, линии, много однотонных поверхностей, строгих оттенков. Это напоминает конструктивизм.
Декорированием можно разбавлять этот стиль. Например, добавив над кроватью монохромных изображений верблюжьего каравана, кактусов, установить на полочках собранные модельки автомобилей или игрушек-трансформеров. Удачно расставленные маленькие акценты украшают комнату – травка на полках дополняет цвет зеленого кресла и игрушки.
Стиль конструктивизм с нотками излюбленной тематики в детской мальчикаИсточник dizainmetrov.ru
Мальчикам, увлекающимся наукой понравится комната в простом классическом стиле, но с напоминанием о том направлении, в котором есть их интерес. Будущие ученые обрадуются телескопы, чтобы следить за звездным небом, миниатюрно лабораторией с настоящим микроскопом и другим практичным элементам. Декорировать стены или стол можно анатомическими фотографиями, картами звездного неба или географической картой.
Выбор цвета
В цветовых решениях просматривается одна тенденция. Пока мальчику не исполнилось 3-4 года, комнаты стараются делать светлыми. Как только ребенок подрастает, сразу же мальчишечья спальня преображается в практичную, функциональную комнату в строгих и темных красках.
Стоит отметить, что обилие темного только уменьшит визуально помещение. Поэтому лучше излюбленные коричневые, черные и серые краски разбавлять оттенками из светлой палитры.
Темные, светлые и яркие оттенки в интерьере комнаты мальчика-подросткаИсточник dizainmetrov.ru
Для маленькой комнаты мальчика самыми оптимальными будут оттенки – песочный, бежевый, светло-коричневый, коричневый, терракотовый, белый, вкрапления стального и черного.
Коричневый и песочный в интерьере детской комнаты для мальчикаИсточник dizainmetrov.ru
Неплохо здесь обыграли цветом комнату в классическом стиле. Приглушенный, но насыщенный, голубой цвет отлично сочетается с древесными поверхностями цвета дерева вишни.
Комната школьникаИсточник me-house.ru
Удачное сочетание насыщенного голубого с оттенком дерева вишниИсточник dizainmetrov.ru
Зонирование
В дизайн детской комнаты 12 обязательно включают зонирование. Маленькую спальню можно разделить при помощи выдвижной софы, служащей спальным местом. В изголовье обустроить навесные шкафы, выдвижные или стационарные полки, а также боковую мини-перегородку. В углу у окна письменный стол. Напротив него – шкаф для вещей.
Для помещений периметром 3х4 подходит вариант, где спальное место организовано вдоль одной стены, спортивный «уголок» практически напротив двери, а шкаф напротив кровати.
Используется домашний турник, двухуровневое спальное место, шкаф и угловой письменный столИсточник me-house.ru
Обустроена кровать над входом в спальню мальчикаИсточник me-house.ru
Зонировать можно не только мебелью, но и поворотными потолочными светильниками, спортивным стационарным снаряжением.
Для визуального зонирования использованы поворотные потолочные светильникиИсточник www.homify.ru
Особенности
Хорошо, если спальня присоединена к лоджии, тогда можно сделать комнату больше убрав балконный простенок. Но если такой возможности нет, то нужно прибегнуть к дизайнерским приемам, которые позволяют рационально использовать имеющееся пространство. Удобнее всего оформлять квадратную комнату, узкие прямоугольные помещения или ромбовидные необходимо максимально приблизить к правильному квадрату
Важно, чтобы спальня была функциональной и не загроможденной лишними предметами. При этом в ней не должно быть тесно
В маленьком помещении необходимо добиться максимально комфортных условий и стильного оформления.

Планировка детской комнаты со входом в углу


Сначала рассмотрим варианты, когда помещение имеет прямоугольную форму и вход в углу.
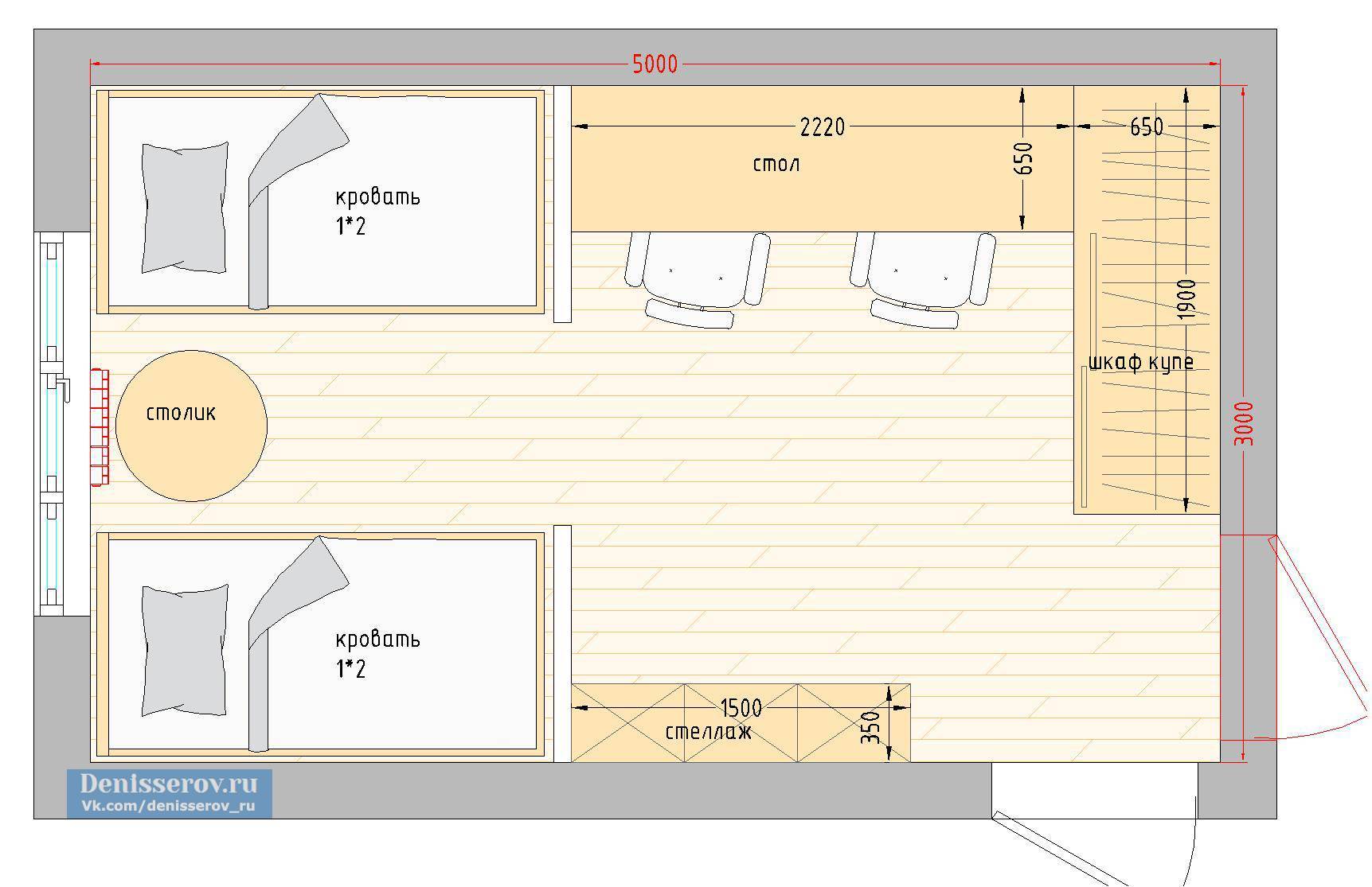
Первый вариант. В этом варианте зоны для сна и зоны для учебы для двух детей расположены зеркально относительно друг друга. По обе стороны от окна — зоны учебы с отдельными письменными столами. А кровати стоят посередине каждой из стен. Кровати в этом варианте установлены вдоль стен. Общий для двух детей шкаф-купе поместили к стене, сразу напротив входа.
Второй вариант. Здесь рабочее место общее для двух детей и занимает всю стену у окна. Справа от окна помещен шкаф-купе. Кровати в этом варианте размещены поперек комнаты. Расположение одной из них получилось прямо напротив входа.


Еще три варианта планировки детской 15 кв. м для двух детей. Форма помещения и вход — те же.
Первый вариант. Учебная зона для двух детей занимает всю зону у окна. Стену слева от окна занимают стеллажи и зона TV. Справа от окна установлен шкаф-купе, примыкающий вплотную к учебной зоне, и две кровати. Причем расположение одной кровати — параллельно стене, а вторая стоит поперек комнаты, вдоль стены, противоположной окну. Плюсом этого варианта является то, что высвободилось место для игр в центре комнаты.
Второй вариант. Кровати расположены с двух сторон от окна. Между ними встал небольшой журнальный столик. Зона учебы находится у правой от окна стены, почти в углу. Естественный свет сюда не поступает, поэтому необходимо оборудовать зону качественным освещением. У противоположной стены от зоны учебы установлены стеллажи для книг. Шкаф-купе находится здесь у стены напротив окна.

Еще два варианта планировки детских комнат площадью 15 кв. м для двух детей. Вход и в том, и в другом варианте расположен в углу, но в первом варианте комната имеет квадратную форму.
Первый вариант. Слева от окна всю стену заняли зона учебы с письменным столом — одним для двух детей и шкаф-купе. От окна справа помещена одна из двух кроватей. Вторая кровать встала у стены, противоположной окну. Еще у этой стены поместилась шведская стенка. В этом варианте много места в центре комнаты для игр детей, но не нашлось места для дивана и книжных стеллажей.
Второй вариант.
Шкаф-купе здесь находится в том же месте, что и в предыдущем варианте. Но, только это их и объединяет. Главная особенность этой планировки детской в том что рабочая зона находиться на подиуме а две кроватки выдвижные из подиума. Когда они не нужны у детей остается достаточно большое место для игр.
Секреты маленьких пространств
Дизайн детской комнаты площадью 11 кв.м. имеет большой простор для фантазии и свои секреты, применяя которые можно создать функциональное и удобное помещение. Для экономии пространства стоит воспользоваться следующими секретами:

Трансформирующаяся мебель. Современное решение, которое отвечает всем потребностям, она удобная в использовании по прямому назначению и экономит пространство для игр.

Двухъярусные кровати. Если комната предназначена для нескольких детей, наличие кровати подобного варианта не займет много места.
Выделение зон. Если комнату разбить на зоны, она визуально увеличится, а если использовать цветовое зонирование, в комнате будет присутствовать веселое настроение.

Сочетание оттенков. Светлые тона не загружают пространство, а делаю его воздушным. Когда хочется веселых тонов, можно добавить яркие элементы, например подушки и покрывало, шторы и кресло.

Занимаем углы. Угловой стол или шкаф, функционально используют пространство, оставляя центральную часть свободной.

Советы о том, как выбрать мебель в детскую комнату для двоих детей
Во время выбора мебели в детскую комнату следует учитывать не только то, кому она предназначается (однополым или разнополым детям), но и некоторые другие факторы:
- Привлекательность предметов интерьера. Обязательно учитывайте пожелания ребенка. Показывайте ему разные варианты изделий, давайте возможность выбрать самому. Если обстановка окажется приятна малышу, он будет рад отдыхать и проводить время в своей комнате.
- Сообразность возрасту и полу детей.
- Наиболее подходящая расцветка, подходящая под общую цветовую гамму комнаты.
- Соответствие размерам и форме конкретного помещения.
- Удобство использования именно детьми.
1. Особенности возраста.
В процессе выбора детской мебели непременно нужно учитывать возрастные качества детей. Приведем советы специалистов в области дизайна:
- Если у детей имеется небольшая разница в возрасте, то лучше купить две кровати и небольшой комод для вещей, возможно, будет необходим и пеленальный столик.
- Независимо от возраста детей не стоит загромождать пространство многочисленными предметами, чтобы им было легко использовать помещение по назначению.
- Детская должна быть светлой и просторной.
- Если разница в возрасте значительна, то старшему ребенку нужно обустроить отдельное пространство. В этом случае комнату целесообразнее разделить на две отдельные зоны при помощи специальной модульной мебели или перегородки.
- И для разнополых детей, и для однополых должна приобретаться специальная мебель, предназначенная именно для использования двумя детьми.
Красота, функциональность, качество и безопасность являются основными критериями при выборе мебели в детскую комнату для двоих детей.
2. Для детей одного пола.
Если детская комната делается для двух мальчиков или двух девочек, то есть возможность продумать общий дизайн.
Если надо обустроить комнату мальчикам, то учитываются такие правила:
- У каждого из детей должно быть свое личное пространство.
- Мальчики обычно являются более активными, нежели девочки, желающими постоянно путешествовать и находить приключения, поэтому оптимальными считаются морская, спортивная, а также темы пиратов, роботов, приключения и т. п.
- Изначально определяется стиль, а потом под него приобретаются предметы меблировки.
- Оптимальными для мальчиков считаются двухъярусные модели кроватей, а также кровати-чердаки. Альтернативными вариантами могут выступить мебель-трансформер и раскладной диван.
- В детской комнате для мальчиков желательно предусмотреть место для занятия спортом со специальными снарядами либо установить шведскую стенку для развития физических навыков.
- Для мальчиков с незначительной разницей в возрасте приобретается один шкаф на двоих в целях сохранения полезного свободного пространства. В нем достаточно выделить каждому ребенку по равному количеству полок.
Хорошо продуманное обустройство детской комнаты позволит избежать конфликтов и разногласий между малышами.
Если обустраивается детская комната девочкам, то желательно обставлять ее симметрично, чтобы они могли и вместе поиграть, и не мешать, друг другу заниматься. Выбирая оттенки оформления для помещения девочек, надо ориентироваться на цветовую психологию. Обычно применяется бежевая, розовая или персиковая цветовая гамма. Элементы декора должны подбираться с учетом мнения детей.
3. Для детей разного пола.
Если у родителей отсутствует возможность выделить для двух разнополых детей отдельные детские комнаты, то стоит в процессе организации пространства предусмотреть несколько важных правил:
- Можно выделить личную территорию каждому из детей при помощи ширм, перегородок, шкафов, плотных штор или других приспособлений.
- Мебель приобретайте с учетом характера каждого ребенка и его личных предпочтений.
- Тема оформления уголка для каждого ребенка может быть индивидуальной, которую любит именно он. Также можно остановиться на универсальных решениях и выбрать нейтральный стиль.
- Когда в доме двое детей, то это всегда много игрушек. Для того чтобы не возникало ссор и разногласий, особенно если дети разнополые, следует предусмотреть отдельную мебель, где они могли бы хранить игрушки или учебные принадлежности, а вот спальное место может быть представлено единой конструкцией, разделенной на две части.
Когда в детской комнате живут разнополые дети, найти оптимальное решение при создании интерьера сложно. Главная задача родителей – обустроить для каждого личную зону, чтобы дать им возможность хотя бы относительного уединения.
Мебель
Дизайн спальни 10 кв м предполагает выбор функциональной, но при этом малогабаритной мебели. Массивные кровати, огромные дубовые шкафы и кресла с подставками для ног лучше оставить в магазине, а встроенные шкафы-кровати, подвесные и двухъярусные модели можно смело приобретать и везти домой.

Правильно расположенное освещение создает эффект большого пространства, что нам и нужно.
Кровать
Кровать может стать не только местом для сна и отдыха, но и выполнять другие функции. Встроенные ящики сделают ее удобным хранилищем для постельного белья и других полезных предметов.

Освещение должно быть мягким, все таки эта спальня где тело и душа отдыхают.
Создание подиума в маленькой спальне поможет зонировать комнату, но при этом не отнимет у вас драгоценные квадратные метры. Для создания кровати достаточно просто положить на него матрац. Это решение не только стильное, но и достаточно экономное. Под подиумом также найдется место для хранения вещей.

У кроватей-подиумов есть не только плюсы, но и минусы.
| Преимущества | Недостатки |
| Нет необходимости покупать кровать, достаточно будет приобрести лишь матрац | Визуальное уменьшение высоты потолков |
| Ящики под подиумом можно использовать вместо шкафа | Разноуровневые конструкции затрудняют передвижение |
| Экономия площади | Не целесообразно использование в однокомнатной квартире |
| Оригинальность конструкции | Данная конструкция не мобильна |
| Возможность зонирования | Сложность монтажа и установки |
Если в маленькой спальне планируется также прием гостей, то раскладной диван – отличная находка. Он не занимает много места.

Такой диван легко превращается в достаточно широкое спальное место.
Зонировать комнату, а также создать неповторимую атмосферу волшебства и уюта поможет легкий балдахин над кроватью. Заказать его можно в мебельном салоне или ателье по пошиву штор, а можно создать и самостоятельно. На самом деле это гораздо проще, чем кажется на первый взгляд. В идеале балдахин можно также украсить гирляндами и фонариками.

Такой декор будет уместен практически в любой стилистике спальни.
Шкафы и тумбы
Прикроватные тумбы – это удобно, но не слишком функционально. Место, занимаемое ими, не компенсируется их пользой. Намного грамотнее заменить их небольшими полками над кроватью или возле нее.

Небольшое пространство это не повод от чего — то отказываться, подходите к созданию дизайна правильно и все получится.
Шкафы с распашными дверями – не лучший выбор для дизайна спальни 10 кв м. Модели купе подойдут сюда гораздо лучше, особенно если их дверцы будут иметь зеркальную или глянцевую поверхность, визуально увеличивающую помещение в разы.

Приобретать шкаф-купе лучше на заказ, чтобы в нем были учтены размеры, форма и стилистика спальни.
Если места в комнате недостаточно для размещения целого шкафа, то по периметру маленькой спальни можно разместить антресоли, а в уголке поставить небольшую напольную вешалку. Такой вариант замены привычной мебели на более рациональные ее аналоги позволит сэкономить пространство и сделать пребывание в спальне более комфортным.

Спальня 10 кв. м. – не приговор для творческого, ищущего человека.
Оформление маленькой комнаты: как угодить всем на 15-17 кв.м?
Маленькие детские комнаты для разнополых детей требуют особого подхода, так как необходимо подобрать вариант визуального увеличения пространства.
- Градиентные обои. Переход цвета от светлого к темному или от более насыщенного к бледному поможет вытянуть комнату. Такое оформление пригодится в том случае, если в помещении много высокой мебели: шкафы, полки, двухъярусная кровать или этажерки. При входе в помещение не будет появляться впечатления, что потолки расположены слишком низко. Такой вариант будет выглядеть стильно, но не потребует больших средств.
- Зеркала, расположенные друг напротив друга. Можно разместить их по несколько штук в зоне мальчика и в части девочки. У каждого ребенка будет возможность посмотреть на свое отражение, а необычная иллюзия визуально увеличит пространство.
Комната для разнополых детей школьного возрастаИсточник buvbaze.lv
Личное пространство в небольшой квартиреИсточник mebel-go.ru
Создание иллюзии коридора. К этой хитрости часто прибегают, если комната прямоугольная, а напротив входа расположено окно. Необходимо подобрать светлые шторы или купить легкий тюль. Яркий свет из окна при входе в помещение будет освещать все пространство, благодаря чему сложится впечатление, что детская просторная. Расположенные по бокам от двери зоны мальчика и девочки будут получать достаточно света, а если поместить рабочее место ближе к окну, можно сэкономить на электроэнергии в светлые дни.
При оформлении детской небольшого размера стоит отказаться от:
- мелкого рисунка на обоях;
- большого количества деталей при декорации;
- объемных украшений.
Все это визуально уменьшит пространство, а также будет отвлекать детей от учебы или полноценного отдыха.
Красивый дизайн комнаты для двоих детей разного полаИсточник yandex.uz







