Интерьер
Важны не только размеры и форма гнездовья для птиц. Надо учитывать внутреннюю освещенность, температурный режим, цвет гнездовья.
- Мухоловки-пеструшки любят светлые внутри гнездовья, поэтому когда через 5–6 лет древесина потемнеет, достаточно побелить их внутри, и пеструшки снова охотно будут в них гнездиться.
- Синицы же предпочитают старые, потемневшие внутри домики, новые стоит покрасить внутри морилкой.
- Большинство птиц охотнее обживают «квартиры», выкрашенные снаружи в зеленый или цвет коры деревьев.
- Скворцы могут занимать даже ярко окрашенные домики: красные, желтые, голубые и синие.

Скворечный пентхаус своими руками – чертежи и пошаговые инструкции
Хотите, чтобы в детском саду отметили именно вашего ребенка? Поставьте себе цель сделать первоклассный скворечник! Для этого изначально запаситесь нужными инструментами: линейкой с карандашом, саморезами или гвоздями, шуруповертом (молотком), ножовкой по дереву, сверлом. Далее поэтапно следуйте алгоритму, и даже если вы начинающий мастер, будьте уверены, что у вас все получится.

Сборка классического варианта с ровной крышей
Такой скворечник можно сделать, если в вашей местности редко случается большой снегопад. В противном случае вам придется следить, чтобы на его горизональной поверхности не скапливался снег и лед. Во всем остальном эта конструкция безупречна, и для ее изготовления вам понадобится минимум усилий:
- Раскроите доски по размерам, указанным на приведенной ниже схеме.
- На передней стенке скворечника сделайте входное отверстие.
- Если вы работаете с гладкой доской, изнутри сделайте насечки, чтобы птицы могли взбираться наверх.
- К двум боковинам, поставленным на ребра, прикрутите или прибейте фасадную часть.
- Таким же образом присоедините заднюю стенку.
- Приделайте днище.
Специалисты-садоводы и орнитологи советуют крышку делать съемной. Так вы сможете при необходимости легко и быстро освободить скворечник от мусора, остающегося, когда птицы покидают гнездовье, а также очистить его от паразитов. Для этого к нижней части крыши нужно прибить деревянную втулку, точно соответствующую по размерам внутренней части корпуса. Чтобы быть уверенным в надежности, навес стоит аккуратно прикрепить проволокой. При желании к летку прибейте шесток в виде треугольника или жердочки.

Поэтапное изготовление скворечни из бревна
Этот вид скворечника сделать еще проще – разумеется, если вы дружите с пилой и молотком. Процесс его сооружения выглядит так:
- Отпилите от ствола дерева два круга толщиной 20–25 см – из них вы сделаете крышу и дно.
- Очистите остаток чурбака от коры и распилите его вдоль на четыре ровные части.
- Срежьте внутренности древесины так, чтобы толщина стенок осталась в пределах 20–30 мм.
- Соедините все части хомутами или саморезами – внутри должно образоваться «дупло».
- Снизу и сверху закройте конструкцию отрезанными ранее кругами.
- Надежно прикрепите их – ваш скворечник готов.
Сделать внутреннюю полость в бревне можно и другим способом – высверливая по кругу отверстия и выбирая оставшиеся между ними перемычки стамеской. Добиваться идеальной гладкости не нужно – напомним, что пернатые будут использовать неровности для взбирания наверх.

Классический деревянный скворечник
В естественных природных условиях многие птицы, кроме гнезд, используют для жилья дупла, сделанные дятлами в стволах деревьев. Скворцы также не являются исключением и селятся в такие места, где дупло имеет небольшие размеры. Таким образом, будущее искусственное жилье не должно быть большим.
Большое значение имеет правильный выбор материала. В большинстве случаев, для того чтобы изготовить скворечник для скворцов используются доски из древесины лиственных пород. Лучше всего для этих целей подходит береза, ольха или осина.
большое количество смолытоксические вещества
Поэтому, чтобы сделать действительно правильный скворечник, необходимо заранее приготовить все материалы и инструменты.
Для изготовления домика для птиц обязательно понадобятся:
- Качественные доски лиственных пород в необработанном виде.
- Тонкие гвозди (3–4 мм), длиной не менее 4-х см.
- Для покрытия используется краска без запаха или специальная пропитка.
- Из инструментов необходимо приготовить ножовку по дереву или электролобзик, молоток, плоскогубцы, карандаш, линейка или рулетка и кисточка.
Прежде всего, необходимо составить чертеж, где обозначить все будущие заготовки с размерами. Это позволит сделать правильный раскрой и сократить расход древесины. Это особенно актуально, если изготавливается сразу несколько экземпляров.
После этого, вся схема аккуратно переносится непосредственно на деревянные заготовки.
боковые стенки – 2 шт20х35 смзадняя и передняя стенка16х35 смДно16х16 смкрышка20х25 см
Кроме того, нужно заранее подготовить жердочку, длиной 4 см и диаметром 10 мм. Вместо жердочки иногда используется полочка с наиболее удобными размерами. После того как все детали размечены, начинается непосредственное изготовление скворечника.
В первую очередь, необходимо вырезать все заготовки, в соответствии с чертежом и произведенной разметкой. Доски стругаются только с наружной стороны, изнутри они остаются шероховатыми.
В передней стенке заранее просверливается отверстие (леток). Для этого используются различные инструменты, на выбор, например, электродрель с фрезой, коловорот, стамеска, ручной или электрический лобзик. Размер отверстия должен быть не более 5 см.
К задней стенке предварительно прикрепляется специальная планка, которая служит для последующего крепления скворечника в установленном месте.
При решении вопроса, как сделать скворечник своими руками, большое значение имеет правильная сборка всей конструкции. Для сборки существуют разные способы, самое главное, чтобы соблюдалась необходимая жесткость и прочность.
Последовательность сборки скворечника (один из вариантов):
- Вначале передняя стенка скрепляется с двумя боковыми. Гвозди забиваются по краям и по центру доски. В результате получается П-образная конструкция, которую нужно сразу же проверить на жесткость и прочность. В случае необходимости, забиваются дополнительные гвозди, между забитыми ранее.
- После этого, таким же образом собирается низ и задняя стенка. В некоторых случаях ко дну прибиваются планки наподобие плинтуса, чтобы внутренние углы были закругленными, как в настоящем дупле. Все детали фиксируются гвоздями и коробка домика практически готова. Собранная конструкция также проверяется на прочность и, при необходимости, дополнительно укрепляется гвоздями.
- Перед тем как делать скворечник дальше, необходимо подготовить крышу. Она обязательно делается съемной, для возможности последующей очистки внутреннего пространства. Ее края выступают за габариты всей конструкции, особенно со стороны передней части. Таким образом, обеспечивается защита от дождевой воды. Сама крыша состоит из двух деталей. Сюда входит основная часть и так называемая втулка, которая входит внутрь скворечника и удерживает на месте всю крышу. После того как обе детали подогнаны по размеру, они скрепляются между собой с помощью гвоздей.
- Остается установить жердочку или дощечку, куда присаживается птичка, прежде чем попасть в свой домик.
Видео о том, как сделать скворечник:
Полезные советы
Перед тем как построить скворечник, необходимо обезопасить себя от возможных травм. Чтобы не нарваться на занозу, во время работы рекомендуется надевать перчатки.
Все доски на стыках должны быть плотно подогнаны между собой. Для этого, вместо гвоздей применяются шурупы или саморезы. Щели конопатятся или замазываются с внутренней и наружной стороны. Когда полностью сделаны скворечники для птиц своими руками, их нижние части засыпаются опилками.
Крыши домиков делаются двускатными или односкатными, чаще всего, с уклоном назад. Птицы не любят слишком ярких цветов, поэтому необходимо покрытие или окраска темных тонов.
Скворечник своими руками: как сделать надежный и удобный дом для птиц (61 фото)
Завлекать птиц на свою придомовую территорию — это приятное и полезное занятие. Ведь пернатые не только услаждают наш слух своими трелями, но и поедают вредных насекомых.

Как сделать скворечник своими руками – об этом наша статья.

Исходный материал – исключительно дерево. Рекомендуется использовать древесину лишь лиственных деревьев, так как хвойные породы выделяют смолу, что может привести к преждевременной кончине пернатого жильца.


Вследствие этого, сборка и крепление заготовок должны осуществляться лишь гвоздями и саморезами, без использования клеевого состава.

Обычно для изготовления скворечника из дерева применяют не струганные доски, толщиной не меньше 2 см. Такая толщина позволяет сохранять постоянный температурный режим внутри птичьего домика.









Размеры скворечника зависит от того, для каких птиц он предназначен. Разные типы скворечников отличаются своими пропорциями и длиной летка.


Обычно изменяется лишь высота скворечника.

Полудуплянки могут привлечь и белок.







Некоторые птицы предпочитают селиться в дуплянках-скворечниках, выполненных из части бревна методом выдалбливания. Днище и кровлю таких конструкций выполняют из досок.



Чтобы избежать разорения скворечника кошками и дятлами, можно принять следующие меры:
- Увеличить свес кровли;
- Утыкать кровлю гвоздями;
- Отделать леток жестяным листом;
- Набить около летка гвозди;
- Приделать возле летка деревянную накладку с горизонтально расположенными волокнами;
- Сделать специальные защищающие пояса из полосок жести или из «веников», при этом необходимо точно придерживаться требуемых расстояний между ними.

Важно: между защитными поясами и скворечником не должно быть сучков, кормушек и прочих вероятных опор








На деревья вешать скворечники надо на высоте не ниже 3 м. Не желательно, чтобы возле этих мест проходили оживленные дорожки и располагались скамейки.


Необходимо взять необработанные доски из лиственных пород толщиной не менее 2 см. Также потребуются перчатки. Далее берем чертежи скворечника и выпиливаем составные детали. Распиливать необходимо аккуратно и ровно, под углом в 90°, чтобы в последующем не было щелей.


Переворачиваем, устанавливаем днище, прибиваем его к боковым сторонам. Далее вставляем заднюю стенку и также закрепляем ее с помощью гвоздей с дном и боковыми частями.







Опять переворачиваем. Крепим днище и с другой стороны. Крышу устанавливаем таким образом, чтобы свес был не меньше 5 см. Желательно 10 см. Прибиваем гвоздями.

Осматриваем получившийся скворечник и загибаем все торчащие гвозди.

Устанавливать ли жёрдочку – решать вам.

В наше время в Интернете можно легко найти самые разные идеи как сделать скворечник на даче или около своего дома.

Некоторые из них весьма необычные. Поэтому смело делайте дома для птиц.

Ведь оригинальный скворечник может стать настоящим украшением вашего сада.



























Как правильно вешать скворечник на территории детского сада
Если в скворечнике не поселятся птицы, то работа напрасная, а во время изготовления были допущены критические ошибки. Это при условии, что птичий домик размещен в лесу. Но если вы его вешаете на территории детского сада, то на поселение пернатых оказывают влияние и другие факторы. Как вешать скворечник, чтобы он не пустовал на площадке детского сада?

Вешать нужно так, чтобы вход скворечника смотрел в южную сторону
Крепление к дереву – не самый удачный вариант. Почему? Во-первых, использовать для фиксации гвозди и саморезы категорически запрещается. Хотя непонятно с чем это связано, ведь альтернативный метод вредит еще больше. Во-вторых, привязывать скворечник к стволу также очень вредит дереву. Диаметр ствола со временем увеличивается, веревки или проволока врастают в тело дерева и приносят ему большие проблемы. Намного значительнее, чем несколько гвоздей, кстати.

Крепление к дереву веревкой
Вот и не могут многие понять, почему забить два гвоздя категорически запрещается, а пережать весь периметр ствола проволокой принято считать безопасным методом фиксации скворечника.

Скворечник из бревна
Схема скворечника: детальный чертеж и размеры
Любой мастер по дереву вам подтвердит, что качественную конструкцию можно смастерить, только имея на руках правильно составленную схему. И домики для птиц в этом случае – не исключение. В этом и заключается главная ошибка многих самоучек. Бездумно копируя схемы, предложенные в интернете, они не делают поправок ни на размеры птиц, ни на специфику их поведения, ни на другие нюансы. В итоге, что не удивительно, получают совсем не тот результат, на который рассчитывали.
Чтобы избежать подобного развития событий, при составлении схемы как следует проработайте следующие моменты:
Размеры скворечника
Если говорить про размеры скворечника, чертеж для скворцов и для тех же синиц будет различен. Поэтому, приступая к работе, первым делом определяемся, каких именно представителей пернатых хотим видеть на своем участке. Так, сегодня популярны следующие виды скворечников:
- Скворечник выбирают для проживания самые разные птицы, поэтому размеры его могут колебаться в диапазоне от 20х10х10 см до 40х15х15 см.
- Синичник – излюбленная конструкция воробьев и синиц и других птиц небольшого размера. Поэтому, мастеря его, не переусердствуйте с размахом. Конструкции с габаритами, не выходящими за пределы 30x12x10 см, будет вполне достаточно.
- Трясогузочник, как можно догадаться по названию, предназначен именно для трясогузок. В отличие от других птиц, эти пернатые более подвижны. Они не прыгают по земле, как те же воробьи, а передвигаются по ней бегом. Поэтому, строя трясогузочник, располагайте конструкцию горизонтально, а также не забудьте снабдить ее достаточно длинным (около 10 см) выступом перед летком. Средние габариты изделия: 15x15x30 см.
- Гнездовье пищух, чаще всего, делают пирамидной формы и с двумя сквозными летками. Специфика домика позволяет птице разместиться с максимальным комфортом и быстро скрыться от преследователя (в случае нападения). Ширина конструкции колеблется в диапазоне между 14 и 20 см, высота – между 22 и 26. Зависит от того, какую именно пищуху: коротколапую или обыкновенную хотите приманить.
Диаметр отверстия в скворечнике
Диаметр отверстия в скворечнике также играет не последнюю роль. Чтобы обезопасить птиц от хищников и пернатых конкурентов, ориентируемся на следующие размеры летка:
- Для скворечника – около 5 см.
- У синичника – не более 3,5 см в диаметре.
- Для трясогузочника – 3 см.
- У гнездовья пищух – около 3,5 см.
Чертеж скворечника
Чтобы сделать скворечник, который не упадет от малейшего ветра и не развалится под собственным весом, нужен хороший чертеж. Предлагаем несколько вариантов, которые легко изготовить в домашних условиях, для ознакомления.


Виды скворечников
Скворечники могут отличаться по форме и размерам, ведь в них селятся не только скворцы, а и другие пернатые. Варьируется и конструкция сооружения. Наиболее популярными вариантами считаются те, создание которых отнимает минимальное количество времени и сил. Это:
Скворечник из доски, оборудованный плоской односкатной крышей
Несмотря на простоту и примитивность конструкции, такой скворечник достаточно функционален и практичен. Он обладает компактными габаритами, легким весом, а покупка материалов для его создания не ударит по карману потребителя. Установка конструкции на дерево также времени не отнимет.
Птичий домик с двухскатной кровлей
Пользуются популярностью среди домашних мастеров и привлекательные домики для птиц, оснащенные практичной двухскатной кровлей.
Она обеспечивает моментальный отток дождевой воды, имеет превосходные практические свойства и достойный функционал. Чтобы соорудить домик с таким типом кровли потребуется немного больше времени.
Домики с нестандартной геометрией
В качестве основы может использоваться короб классической прямоугольной формы, выбираемый многими мастерами из соображений практичности и рациональности.
Однако приемлемо создание скворечников с интересной нестандартной геометрией. Они гармонично смотрятся в естественной природной среде, обладают стильным и эффектным дизайном, выдающим творческие наклонности мастера и его уникальный вкус.
Домики, созданные без чертежей
Мастера имеют опыт создания домиков без чертежей и схем. Они используют в работе деревянные колоды и бревна цилиндрической формы, а затем выпиливают в них середину и сооружают кровлю.
Такая конструкция имеет несколько сильных сторон. Она получается цельной, поэтому хорошо сохраняет тепло. При этом работа над скворечником отнимает минимум времени и сил. Аналогичным образом умельцы создают скворечники и их других подручных материалов:
тубусы
Обыкновенный пластиковый тубус, который студенты и школьники используют для транспортировки бумажных листов, можно использовать для создания импровизированного скворечника.
Днище и верх тубуса обрезают, а потом оснащают «домик» открывающейся дверцой. Затем конструкцию прикрепляют на нужной высоте на дереве.
пластиковые бутылки
Доступной себестоимостью изготовления отличаются скворечники, изготовленные из пластиковых бутылок. Они легки и компактны, однако уступают деревянным аналогам по показателям энергосбережения.
Чтобы улучшить эти качества, основу из пластика дополнительно утепляют соломой или деревянными опилками.
ротанг
При наличии навыков плетения из лозы, соорудить стильный и долговечный скворечник можно из натурального ротанга. Этот материал не только отлично выглядит, а и обладает другими достойными характеристиками. Среди них распространенность, пластичность, доступность, универсальная сфера применения. Кровлю в таком домике можно сделать из деревянной доски.
прочие материалы
Возможно строительство птичьих домиков из глины, соломы и прочих материалов.
Украшение фанерного домика
Как только птичий домик будет построен, его нужно еще украсить. Это несложный и очень интересный процесс, ведь при украшении можно проявлять фантазию. Поэтому такой процесс требует смекалки и, главное, вдохновения. Существует несколько интересных вариантов оформления скворечника, выполненного из фанеры. Ниже представлены самые яркие из них.
Строительство скворечника — это благородная затея
- Покрасьте корпус скворечника не в один, а сразу в несколько цветов, сделав конструкцию тем самым более красивой. К примеру, крышу и дно скворечника можно покрасить в темный цвет, а остальные части – в светлый. Здесь нужно проявлять фантазию. Если есть такая возможность, изделие можно разукрасить рисунками.
- Украсьте крышу скворечника необычным способом. Многие умельцы добавляют сельские нотки в дизайн птичьего домика, приклеивая к крыше сено. Еще крышу можно оклеить небольшими жгутиками из веревки. Это будет смотреться очень эффектно.
- Используйте электролобзик для выпиливания разных узоров из фанеры, которые в итоге можно приклеить к боковым частям скворечника. Стилистику и размеры вырезанных украшений каждый мастер выбирает сам.
- Изготовьте симпатичный заборчик, используя палочки от мороженого или небольшие веточки. Готовым забором снабдите ранее изготовленный домик для птиц. Также можно добавить ступеньки или небольшие декоративные окна, чтобы скворечник выглядел, как настоящий дом.
Всего за несколько часов мастер без профессиональных столярных и строительных навыков сможет соорудить простой скворечник
Необычные скворечники
Правильное сочетание фантазии с мастерством позволит превратить обычный скворечник в настоящий дворец для обитания птиц, которым можно украсить дачный участок. Ведь в Интернете можно найти множество оригинальных идей! Нужно лишь выделить немного свободного времени и взяться за работу. Можно привлечь к данному процессу своих детей, чтобы превратить работу в веселую игру.
Выбираем правильные размеры скворечника
Если вы не знаете, как правильно сделать птичий домик, то сначала вам необходимо выяснить: какие должны быть размеры конструкции по госту. Делаем изделие с учетом того, что для разных птиц размеры конструкции будут отличаться.
Чертежи с основными размерами
Решая, как построить изделие своими руками, выберите для начала простую конструкцию, имеющую стандартные размеры для скворечника.
Прежде чем выполнять чертеж и размеры, учтите ряд некоторых условий:
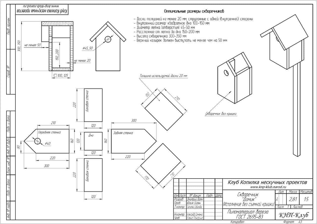
- диаметр отверстия в скворечнике должен равняться около 50 мм;
- высота сооружения варьируется в пределах 30-35 см;
- длина от отверстия до дна должна составлять не менее 20 см;
- дно должно быть не менее 15*15 см.
Схема раскладки конструкции и основные размеры
Используя данные параметры, можно построить крепкие скворечники для птиц своими руками. Чертежи предполагают обозначение всех элементов. Приведенные размеры больше подходят для таких птиц, как воробьи и скворцы. Также на чертеже необходимо проставить размеры летка. На фото можно посмотреть, какой вид имеют подобные конструкции.
Размеры скворечника для скворцов
Выполняя скворечник своими руками для скворцов, нужно учитывать, что это довольно крупная птица. Такая конструкция должна быть глубже и больше других вариантов. Чтобы правильно выполнить чертеж, необходимо выяснить основные размеры изделия.
Большое значение имеет размер отверстия в скворечнике. Он должен быть около 5 см. Высота кормушки или скворечника должна быть 35-40 см. Размеры дна должны быть около 15*15см. Леток лучше делать круглой формы. При этом диаметр отверстия в скворечнике для скворца зависит от общих габаритов конструкции.
Вот такой должен быть скворечник для скворца и воробья
Синичник: чертеж и размеры, некоторые особенности
Как сделать конструкцию синичника зависит от выбранных материалов и его размеров. Существуют стандартные размеры скворечника для синиц. Дно должно иметь габариты 10*12 см, высота конструкции 25-35 см, а размеры летка около 30-35 мм. Глубина изделия должна быть около 50 см. С помощью этих данных выполняются чертежи.
На дно птичьего жилища рекомендуется насыпать опилок, а стенки внутри стоит окрасить темными красками.
Чертеж постройки для синицы
Вот такой синицын домик
Домик для трясогузки: чертеж и размеры
Выполняя домик для птиц трясогузок своими руками, также понадобится знать рекомендуемые размеры. Дно необходимо сделать размерами 10*8 см, а высота такой конструкции выполняется в пределах 20 см. Леток имеет размеры около 35-40 мм. Решая, как сделать, такую конструкцию, стоит учитывать, что леток должен иметь вид щели, ширина которой не более 40 мм.
Подобные изделия ребята мастерят на уроках труда. При этом используются специальные чертежи. Особенной чертой такой конструкции является наличие площадки у входа, ширина которой около 10 см.
Чертеж домика для трясогузки
Это интересно: Построить гараж из профнастила, металлопрофиля своими руками: излагаем подробно
Правильные размеры домиков для птиц и прочие требования
Существуют общие требования для птичьего жилья независимо от того, для каких конкретно пернатых они предназначены:
- Птичий домик должен иметь достаточную теплоизоляцию, защищен от шума, влаги и сквозняков. Для этого деревянный скворечник делают из досок толщиной не менее 20мм. Швы и щели домика заделывают глиной, пластилином или паклей.
- Правильная конструкция не должна иметь острых выступов, о которые могут пораниться пернатые жители. Выступающие части обрабатывают наждачной шкуркой.
- Конфигурация скворечника должна обеспечивать возможность птичкам легко попадать вовнутрь и выбираться наружу. В скворечнике из строганой доски переднюю стенку изнутри делают шероховатой с помощью ножовки и дрели. Скворечник из пластиковой бутылки отделывают изнутри грубой тканью.
- Материал жилища для птиц не должен излучать неприятные запахи. Ламинированная ДСП и плита OSB имеют в своем составе формальдегиды и для птиц не подходят. По тем же причинам использование фанеры также не приветствуется. Нельзя применять для сборки скворечника неорганические клеи. Лучше покрасить изделие акриловыми красками.
- Не следует использовать для отделки домика слишком яркие краски. Птицы различают цвета заметно лучше, чем люди, и в природе не привыкли демонстрировать всем свое гнездо. Лучше не создавать наводку хищным птицам и кошкам. Хорошая краска заметно продлит жизнь Вашего изделия.
- Конструкция и размещение скворечника должны обеспечивать достаточную защиту от кошек и дятлов.
- Скворечник не должен быть слишком большим, чтобы не спровоцировать самку отложить излишне много яиц. Большое количество птенцов трудно обеспечить кормом, и они не выживут.
Добавим более подробно еще несколько существенных замечаний по «архитектуре» птичьих домов. Для защиты от кошачьих ОПГ (организованных преступных группировок) скворечник следует располагать так, чтобы в него невозможно было забраться с расположенных рядом веток.
Опору под летком, так называют вход в птичий домик, лучше не делать: птичке достаточно веток, если скворечник находится на дереве, а кошки обязательно воспользуются дополнительной возможностью в преступных целях. Для защиты птенцов от нападения сверху, свес козырька скворечника увеличивают до 70-80мм. Чем больше угол наклона крыши, тем кошкам сложнее совершить свое черное дело, забравшись на него сверху.
Чтобы кошачьи ОПГ не добрались до скворечника по опоре снизу или сверху, ее оборачивают жестью в соответствии с изображением. Кошка скользит по металлу и не доберется до птенцов. Для защиты от притязаний дятла, леток для птичек укрепляют металлической или толстой деревянной накладкой, как на фото. Тогда он не сможет расширить леток и добраться до яиц.
Довольно часто скворечники делают из древесины хвойных пород. Выделяющаяся из древесины смола может испортить оперение птичек. Лучше использовать для птичьего гнезда березу или ольху. В крайнем случае, следует подобрать сосновые доски без сучков.
В скворечнике, который птицы используют неоднократно, могут скопиться паразиты. Это может привести к тому, что пернатые перестанут в нем селиться. Для решения этой проблемы скворечник предпочтительно обрабатывать ежегодно через съемную крышку. Все, что в него принесли предыдущие жильцы, следует выбросить. Для обработки подойдет слабый раствор марганцовки или просто кипяток.
Разные птицы имеют свои особенности и выбирают для себя «квартиры» в соответствии с потребностями. Планируя обустроить своими руками скворечник для определенных птичек, воспользуйтесь его стандартными размерами по госту из нижеследующей таблицы.
| Вид скворечника | Размеры дна, см | Высота, см | Диаметр летка, см | Форма и размещение летка |
| Для скворцов | 10-12х10-12 | 30-40 | 4,5-5,5 | Круглый, 15-20 см от дна |
| Синичник- для синиц, мухоловок, воробьев, горихвосток, сычей | 10-12х10-12 | 25-30 | 3-3,5 | Круглый, 15-20 см от дна |
| Малый синичник — для мухоловок и горихвосток | 10х8 | 25-30 | 3 | Круглый, 15-20 см от дна |
| Для трясогузок | 30-35х40-45 | 11-14 | ширина 3,5-4 | Прямоугольный |
| Полудуплянка | 10х8 | 25-30 | высота 3,3-5 | Щель на всю ширину передней стенки |
Упомянутый в таблице птичий дом под названием «полудуплянка» предназначен для птиц, которые привыкли гнездиться не в дуплах деревьев, а в углублении между ветвями. Эти птички предпочитают определенную освещенность, и им подойдет леток в виде щели.
Учтите, что трясогузке трудно перемещаться по вертикальным поверхностям, и для нее лучше обустроить комфортную площадку перед летком шириной 8-12см. Для небольших птичек, как пищухи, организуют два расположенных напротив друг друга летка. Считается, что скворцы не селятся в домиках зеленого цвета. Особенности изготовления синичника в следующем видео.


































