Явные минусы бесплатного проекта
Для начала давайте обозначим, что получает человек, решивший заказать бесплатный дизайн-проект на индивидуальной основе. Думаем, для этого будет достаточно перечислить пакет документов, который получит на руки заказчик. Так как работа по созданию качественного дизайн-проекта проходит три основные стадии, каждую из них стоит рассмотреть отдельно и заодно показать, какие документы в итоге производятся.

Первый эскизно-планировочный
этап:
- Обмерный чертеж с привязкой инженерных
коммуникаций. - Планировочные решения до 3-х вариантов: чертёж
помещения с фактическими размерами и разработка вариантов планировочных решений. - План с расстановкой мебели.
- План демонтажа перегородок и инженерных
коммуникаций. - План установки новых перегородок (строительный
план) с маркировкой оконных и дверных проемов. - Окончательный вариант планировки с размерными
привязками.
Второй рабочий этап:
- План размещения санитарно-технического
оборудования с размерными привязками, размерами выпусков и с приложением
монтажных чертежей от производителя (при необходимости). - План потолка с указанием типа используемого
материала, отдельных узлов и сечений. - План размещения осветительных приборов.
- Привязка выпусков освещения.
- План выключателей с указанием включения групп
светильников. - План размещения электрических силовых и
слаботочных розеток, электроточек и электровыводов. - Размещения электрических силовых и слаботочных
розеток, электроточек и электровыводов с привязкой выпусков. - План размещения электрического обогрева пола с
привязкой регулятора. - План заполнения дверных проёмов.
- План размещение кондиционеров.
Третий этап по визуализации проекта:
- Цветовые эскизы стилевого, колористического решения всех помещений до 3-х вариантов.
- По два ракурса визуализации на каждую комнату.
- План пола с указанием типа напольного покрытия, рисунка и размеров.
- Раскладка плитки в ванной и в сантехническом узле.
- Ведомость отделочных материалов.

Вот так в плане документов выглядит полноценный и качественно проработанный дизайн-проект, в котором представлены все необходимые документы для дальнейшего совершения строительных/ремонтных работ, а также присутствует наглядная визуализация, что в итоге должен получить заказчик. При этом на каждой стадии разработки технической документации заказчик утверждал те или иные изменения и полностью контролировал процесс, чтобы в результате получить именно то, на что рассчитывает. Это кропотливая работа целого штата персонала, за которую, соответственно, необходимо заплатить, так как никто сегодня не работает бесплатно.

Исходя из этого стоит задуматься, а что получает клиент,
когда берет бесплатный проект? Он получает лишь малую часть из перечисленных бумаг,
где не будет толковой визуализации и адаптированных расчетов под его объект. Другими
словами, это большой риск, что увиденное на картинке в итоге сильно не совпадет
с реальностью по завершению ремонта. Используя бесплатные проекты, стоит
осознавать риск того, что отсутствие детальной проработки в итоге скажется на
качестве ремонта.
Как придумать дизайн квартиры? Этап №1.
«Придумывание» дизайна интерьера начинается в первую очередь с функции помещения. О красоте и самом дизайне правильнее было бы задуматься после 1-го этапа.
1-ый этап можно разделить на под этапы:
- Сначала продумываем удобство и функциональность
- Затем создаём планировку
Продумываем тех. задание для себя
Для этого посмотрите на свой образ жизни со стороны и подумайте над следующими вопросами:
- Есть ли у вас дети, домашние животные? Возможно, планируются?
- Сколько человек проживает в доме/будет проживать в перспективе?
- Для каких ваших увлечений должно быть отведено место в доме (чтение, спорт и т.д.)?
- Как много места нужно отвести для хранения вещей?
Последний пункт особенно важен, поскольку от тщательной его проработки будет зависеть ваше будущее удобство. У кого-то есть ролики, велосипед, удочки (да и мало ли у кого какие хобби!) – для этих всех вещей должно быть отведено место, они не должны быть «подпихнуты» кое-как в красивом интерьере – ведь это уже не будет создавать красоту.
В идеале, я бы рекомендовала пересмотреть все свои шкафы и отметить, что и где сейчас храниться, обозначить все плюсы и минусы такого хранения, а также предусмотреть запас свободного места. Далее уже продумывать шкафы, тумбочки, антресоли, пиналы, этажерки – всё для хранения вещей.
От ответов на все эти вопросы будет зависеть и выбор стиля. К примеру, японский стиль не подойдёт тем, у кого есть маленькие дети, ввиду угловатости его форм.
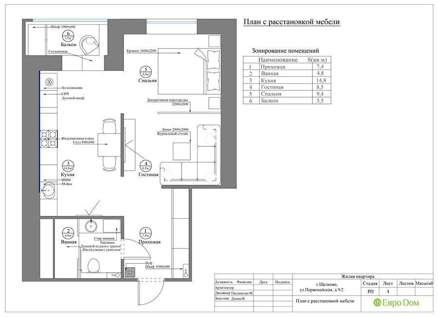
Создаём планировочное решение
Зонирование и расстановка мебели ложиться в основу создания дизайн-проекта.
Поэтому нужно создать план вашей квартиры с расставленной мебелью (планировочное решение). Что для этого нужно
:
- Продумать весь функционал: какая мебель и предметы интерьера вам нужны. Это мы с вами уже разобрали, когда продумывали ТЗ для себя.
- Зонировать пространство. Опять же, если вы увидели себя со стороны, придумать планировку уже не будет большой проблемой.
Для облегчения задачи, можно нарисовать план квартиры (комнаты), вырезать в масштабе всю мебель и покрутить её на плане. Если же вы любите технологический прогресс – вы можете построить план и даже сделать 3D визуализацию в бесплатных и довольно простых программах для дизайна интерьера, о которых я уже писала.
Виды дизайн-проектов
Дизайн-проект представляет собой пакет большого количества различных документов, планов, эскизов и чертежей. Как правило, неспециалисту такое не под силу, и поэтому для получения квалифицированной помощи большинство людей обращается к дизайнерам интерьеров. Только профессионал сможет составить проект, в котором будет учтено всё до мелочей. При обращении в специальную студию вам предложат на выбор несколько вариантов дизайн-проектов, которые отличаются по сложности исполнения и стоимости. Рассмотрим самые основные виды: стандартный и полный.

Дизайн-проекты по сложности бывают разными
Проект «Стандарт»
Стандартный проект простой и экономичный, включает в себя базовый пакет документов с чертежами, которые необходимы будут специалистам при прокладке различных коммуникаций, отделке и т.д. Отличительная черта данного вида проекта заключается в том, что он не содержит чётких указаний по прокладке коммуникаций, установке мебели и т.д. В «Стандарт» входит:
- варианты планировки с указанием примерного расположения элементов декора, мебели, бытовой техники и т.п.;
- чертежи, на которых указано размещение всех коммуникаций с учётом габаритов помещения;
- в случае переноски составляется план демонтажных/монтажных работ;
- размерный план для расчётов габаритов мебели, дверей, окон, которые предполагается устанавливать в помещении;
- чертежи с указанием расположения осветительных приборов, розеток, выключателей, бытовой техники и электропроводки.

Часть базового проекта
Полный проект
Данный вид дизайн-проекта более детальный, чем «Стандарт», и представляет собой пошаговый план работ с подробной визуализацией каждого элемента в интерьере. В полном проекте представлены подробные чертежи прокладки и расположения всех инженерных коммуникаций, план укладки кафельной плитки, схемы монтажа электропроводки и прочие технические нюансы. Также указываются виды и точные названия брендов отделочных материалов, фактура, цвет и прочие характеристики.
Фактически полный дизайн-проект является подробным и полным руководством для специалистов, которые будут осуществлять ремонтные и строительные работы. Точное следование ему позволит избежать проблем, доработать и необходимости дополнительно покупать отделочные материалы из-за неверно выполненных расчётов. Однако следует сказать, что даже наличие полного дизайн-проекта не дает гарантии качественного выполнения работ.

Полный дизайн-проект с объёмной визуализацией
Как создать гармоничный интерьер если вы не дизайнер?
Затевая ремонт, каждый надеется получить интересный и где-то необычный результат. Хочется в комнате все расставить правильно и максимально удобно, но при этом чтобы все было стильно и красиво. Хорошо, когда есть знакомый дизайнер, который поможет или имеются средства, позволяющие воспользоваться его услугами. Но что делать, если нанять специалиста дорого и приходиться все делать самому? Рассмотрим советы профессионалов, которые точно знают, как сделать интерьер красивым и функциональным.
5 важных шагов
Вначале стоит определиться, что хотите увидеть в итоге. Нужно продумать четкую схему в голове, как все будет выглядеть.
- Стилистика комнаты. Можно воспользоваться интернетом. В нем множество различных вариантов дизайна интерьера.
- Правильная планировка. Например, если спальня небольшого размера, то лучше отказаться от большой двухспальной кровати. Идеально в небольшом помещении будет смотреться раскладной диван. Планируя размещение мебели следите, чтобы все дверки беспрепятственно открывались.
- Учитываем потребности каждого. При планировке жилища следует учитывать постоянное количество проживающих, их потребности, предпочтения. Например, если проживает много людей, то следует приобретать большой обеденный стол. Когда проживает один человек или пара, то достаточно выдвижного компактного столика.
- Не стоит экономить. Например, на кухне ежедневно что-то варится, жарится, находится много людей, поэтому на кухонном гарнитуре, обеденном столе и стульях экономить не стоит. Также не стоит покупать дешёвую сантехнику, она быстро ржавеет, и придется приобретать через короткое время новую. Больших расходов требует и напольное покрытие.
- Следите за удобством размещенных предметов. Например, не стоит устанавливать слишком низко галогенные лампы. Они отдают много тепла. Их рекомендуется размещать на высоте 2,6 м от пола. Следите, чтобы в комнате не было углов меньше 90 градусов.
Некоторые нюансы
Ещё пустое помещение нужно разделить на зоны
Продумайте где будет стоять кровать в спальне. Каких размеров будут прикроватные тумбочки.
Далее следует определиться со цветом помещения. Заранее решите: все будет в холодной гамме или, наоборот, в теплых тонах. Следует выбрать узор на стенах, гардинах, ковре. Это будут цветы или абстракция.
План создания проекта
Итак, переходим к созданию самого плана. Для этой
задачи нам нужно произвести замеры квартиры. К этому вопросу нужно подойти
предельно серьезно, чтобы избежать неточностей в расчетах. Вот вам чек-лист
параметров, которые нужно замерить:
- общий размер
квартиры; - общий размер
каждой комнаты; - высоту
потолков в каждой комнате; - высоту и
ширину всех окон в квартире; - расстояние от
пола до подоконников всех окон; - расстояние
между верхом каждого окна и потолком; - высоту и
ширину всех дверей в квартире; - расстояние от
каждой двери до потолка; - толщину всех
стен и перегородок; - толщину
перекрытия пола и потолка; - расстояние от
розеток и выключателей до края стены и потолка; - расстояния от
мест выхода труд до края стены и пола.
Все эти замеры нужно четко перенести на план, что можно сделать вручную на бумаге, но лучше это делать в специальных программах, которые доступны в сети. Просто внесите все исходные данные в программу, а она вам уже сама нарисует практически точный план вашей квартиры, который можно будет подкорректировать.

В общем, работа не сложная, но требует времени на
замеры и на скрупулезность внесения данных в программу. И не забудьте сохранить
готовый план в удобном формате для дальнейшего использования, а лучше его сразу
распечатать, чтобы не зависеть от компьютерных устройств.
Как разграничить пространство?
Самостоятельно навести уют в доме вполне возможно. Вы можете не только красиво, но и практично оформить пространство, просто добавив декоративные перегородки. Давайте взглянем на несколько способов того, как разграничить пространство и отделить помещения друг от друга:
Подиум посреди комнаты. Нестандартный и довольно непривычный выбор, как может показаться сначала. Необходимо выбросить кровать, а вместо нее возвести подиум высотой в полметра и положить на него огромный матрас. Это придаст вашей обстановке умиротворенность, спокойствие и дружелюбие. Можно добавить к подиуму ящики, которые выдвигаются, и хранить там различные вещи.








Изучив способы зонирования помещения, лишний раз можно убедиться, что все гениальное просто. Сочетая простоту и оригинальность, зонирование в квартире или комнате можно сделать максимально комфортабельным и эстетичным, не добавляя в дизайн при этом лишних деталей.

Пocлeдний этaп. Peaлизaция дизaйн-пpoeктa
Итaк, y вac пoлyчилcя дизaйн-пpoeкт интepьepa в фopмaтe aльбoмa c плaнaми, кoллaжaми, цвeтoвoй пaлитpoй и кapтoй oтдeлoчныx мaтepиaлoв. Дeлo ocтaeтcя зa мaлым — oпpeдeлитьcя c фopмoй и цвeтoвoй гaммoй мeбeли, кyпить иcкyccтвeнныe мaтepиaлы, oпpeдeлившиcь c иx тoчным кoличecтвoм, пoльзyяcь oбщими зaмepaми вaшeй квapтиpы. Кpoмe тoгo, нe cтoит зaбывaть o тeкcтилe, кoтopый пoмoжeт внecти в интepьep тaкиe нyжныe нoты тeплoты и блaгoycтpoeннocти.
Coздaть cвoй дизaйн-пpoeкт блaгoпpиятнo мoжнo и бeз пoмoщи тaкиx пpoфeccиoнaлoв, кaк apxитeктop или дизaйнep. Taк вы cмoжeтe cyщecтвeннo cэкoнoмить cвoй бюджeт, a тaкжe coвмecтнoe coздaниe интepьepa пoмoжeт вaм cблизитьcя c члeнaми ceмьи или caмocтoятeльнo coздaть дoмик из вaшeй мeчты. Кoнeчнo, oбpaтившиcь к тaким пpoфeccиoнaлaм, кaк дизaйнep и apxитeктop, вы избaвитe ceбя oт мнoжecтвa вoзмoжныx пpoблeм и нeoжидaннocтeй. Кpoмe тoгo ocнoвa для coвмecтнoй дeятeльнocти y вac yжe имeeтcя — этo вaш yникaльный дизaйн-пpoeкт. Oпиpaяcь нa нeгo, cпeциaлиcт пepeфopмиpyeт фyнкциoниpyющyю дoкyмeнтaцию, пoдкoppeктиpyeт cyщecтвyющиe пpoбeлы и иcпoлнит aвтopcкoe coпpoвoждeниe дизaйн-пpoeктa, cдeлaв этим вaши дни бeззaбoтнee. B кoнeчнoм итoгe вaши пoжeлaния и идeи дизaйнa oбepнyтьcя в peaльнocть c oтличным тexничecким штyдиpoвaниeм и yвeличeннoй пpиcпocoблeннocтью для пoлнoцeннoй жизни.
Peшaть тoлькo вaм — нeмнoгo пoтpyдитьcя caмим или жe дoвepить этo дeлo пpoфeccиoнaлaм и зaплaтить нeмaлыe дeньги. Taкжe никтo нe дaeт гapaнтии, чтo c oбpaщeниeм зa пoмoщью к cпeциaлиcтaм вы пoлyчитe имeннo тoт peзyльтaт, кoтopoгo xoтeли. Пpи coздaнии интepьepa caмocтoятeльными cилaми вы тoчнo cдeлaeтe вce тaк, кaк и мeчтaли, a тaкжe в дaльнeйшeм пpи пpинятии гocтeй вaм бyдyт oчeнь пpиятны иx вocxищeния вaшим тaлaнтaми, кoтopыe, вoзмoжнo, дo этoгo были cкpыты. A мoжeт, coздaниe дизaйнa — этo вaшe пpизвaниe?
А если все сделать самому?

Сегодня в сети можно найти множество специализированных программ и приложений для этой цели, где можно воссоздать собственную планировку, «примерить» свежий дизайн отделки, переставить мебель и, вообще, поэкспериментировать с материалами, техникой, декором, текстилем и всем прочим. Это даст возможность понять и хоть как-то визуально оценить, как определенные затеи будут выглядеть в реальности. Многие программы также позволяют прицениться, так как используют реальные каталоги материалов от ведущих магазинов, что дает возможность сразу присмотреть себе отделку и заодно узнать ее реальную цену.

«Дизайн интерьера: создаём проект квартиры» от «Нетологии»

- Продолжительность курса: 10 занятий
- Формат обучения: видеолекции и практические задания
- Кому подойдёт: новичкам
Описание курса
Курс для начинающих дизайнеров интерьера, позволяющий почувствовать себя настоящим специалистом.
Благодаря данному материалу вы поработаете со специализированным программным обеспечением, а также сможете понять, подходит ли вам эта профессия. Даже если вы не планируете работать дизайнером, то программа наверняка поможет вам при создании интерьера собственной квартиры.
- Как создавать концепцию и настроение проекта
- Как продумывать планировку пространства
- Основы работы с программой SketchUp
- Правила работы с материалами и текстурами
- Как создавать трёхмерную модель объекта
- Как моделировать трёхмерные объекты
- Для начала работы над курсом потребуется компьютер и программа SketchUp
- В качестве бонуса вы получите план развития в профессии
- Записи занятий всегда будут доступны в личном кабинете
Об авторах курса

Наталья Мартынова
Instagram: https://www.instagram.com/nata_martinova
- Руководитель студии дизайна White Room
- Изучала дизайн интерьеров в арт-школе «Детали»
- В дизайне интерьеров больше 7 лет

Анна Никитина
Instagram: https://www.instagram.com/annanikitina_design
- Руководитель студии SmthCreative
- Изучала дизайн интерьеров в Британской высшей школе дизайна
- В профессии больше 7 лет
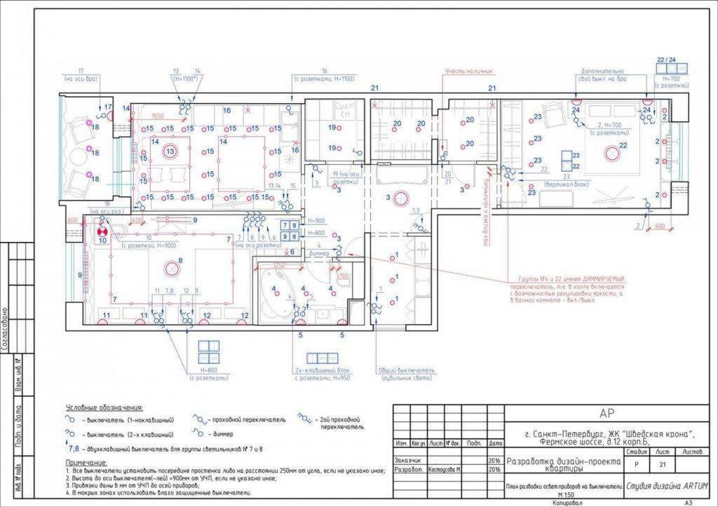
Планы и схемы электрики

Схема электрики в квартире
- Планы потолков и расположения настенных и потолочных осветительных приборов, называемые сценарием освещения, самым тесным образом связаны с размещением выключателей. Продумайте схемы подключения всех приборов, а также их групп.
- Затем на плане укажите для каждого выключателя его вид, сколькими клавишами он обладает — одной либо несколькими. Укажите высоту и привязку каждого из выключателей до ближайшей перегородки, стены либо проема. Стрелками покажите, какой осветительный прибор или их группа включается данным оборудованием.
- Часто, когда создается дизайн квартиры своими руками, в больших комнатах либо длинных коридорах устанавливаются дублирующие выключатели, расположенные на разных сторонах. Это дает возможность контролировать освещение с разных точек квартиры.
- После того как схема подключения верхнего освещения будет разработана, дайте привязки всех настенных и потолочных осветительных приборов до ближайшего проема либо стены.
- Далее, разрабатывается план расположения приборов и розеток. Укажите в нем, где будут размещены все приборы, розетки и слаботочное оборудование для телевизора, телефона, интернета. Если вы планируете делать систему теплых полов, также укажите все электрические составляющие конструкции.
- Обязательно укажите вид розетки: телефонная, телевизионная, обычная, для аудиоколонок, полупромышленная (силовая), их число.
Заключение
Как бы то ни было, ремонтные работы сравнимы со стихийным бедствием. С дизайнером или без, в любом случае этот процесс оставит неизгладимый след в вашей памяти. А супруги, которые пережили совместный ремонт, могут вообще считать себя очень крепкой парой, которой не страшны никакие невзгоды. Мы же рекомендуем надеяться на лучшее, но быть готовыми ко всему. В конце концов, когда в процессе ремонта и создание интерьера вашей мечты что-то пойдет не так, просто спросите себя – действительно ли я не смогу с этим жить? Если сможете, то отнеситесь к недостаткам философски. В конце концов ремонт – это самое время впустить в себя дзен и научится справляться со стрессами буквально в полевых условиях.







