Интерьер гостиной со вторым светом
Гостиные со вторым уровнем света раньше использовались во дворцах и особняках. Такое расположение окон имеет отношение к европейской архитектуре 17 века.
Престиж двусветного помещения значительно вырастает, если оно оформлено по всем правилам. Рассмотрим эти правила при помощи таблицы:
| Интерьерная задумка | Реализация |
| Готическая люстра | Максимально простой дизайн, большой размер, минимум мелких деталей. |
| Панно и картины | Располагаются на уровне вторых и первых окон, приветствуются двухъярусные композиции. |
| Диван | Самый большой диван, который только можно найти или средний диван и два массивных кресла. |
| Книжные шкафы | Максимально высокие конструкции, желательно от пола и до потолка. |
| Освещение | Настенные бра, торшеры, люстры-шары в один ряд от центра к краям комнаты. |
Данное расположение значимых интерьерных деталей поможет добиться максимальной гармонии пространства. Остальные элементы интерьера могут выглядеть так, как пожелает владелец дома, и расставляются в соответствии с выбранным направлением стиля.
Гостиный интерьер со вторым светом может быть выполнен, как в теплых, так и в холодных тонах. К тому же, при таких окнах возможно использование черного цвета на стенах и потолке. Любые темные тона при двухуровневом освещении будут смотреться роскошно. Легкий блеск мрамора, греческие колонны, благородное дерево и канделябры – вот неизменные спутники второго света в интерьере.
История возникновения
Идея возникновения второго света уходит корнями во времена Римской империи. Именно тогда впервые появилась техника изготовления стеклянных окон, а чтобы максимально освещать парадную комнату, по верху выполняли дополнительное остекление потолка.
Апогеем эпохи использования двойного освещения в жилище стал период распространения готической архитектуры. В те времена получили распространение колонны, усиленные опорами, и замки с высокими этажами. Межоконное пространство полностью заполнялось панорамными витражами с изображениями на религиозную тематику. Подобные архитектурные проекты могли себе позволить лишь богатые вельможи.
В России технология двойного света получила распространение позже. Классическим примером считается здание Эрмитажа в Санкт-Петербурге. Однако после революции технология уступила место более простым решениям, поэтому сфера применения второго света ограничилась зданиями и сооружениями общественного назначения.
Правила дизайна проходной гостиной
Рекомендуется обыграть открытый характер проходного помещения. Стоит впустить максимум света, больше воздуха и стеклянных поверхностей. Стены, не являющиеся несущим можно заменить перегородками из стекла, что сделает атмосферу просторной, воздушной и легкой.
Не злоупотребляйте зонированием. Создавайте отдельные сегменты только при необходимости. Если гостиная выполняет свои функции, и другие на нее не возложены, то создавать даже визуальные границы не стоит.
Классическая схема расстановки мебели не подойдет для проходной. Главное, чтобы было удобно перемещаться по всем комнатам.
В комнате должно быть достаточно света
Очень красиво будут выглядеть стеклянные поверхности
Дизайн проходной комнаты в «хрущевке»
Плюсом проходной в хрущевке является окно, занимающее большую часть стены. Дополните оконный проем легкими почти прозрачными шторами, что позволит мягко рассеивать свет. Напротив стоит разместить перегородку с зеркальной или глянцевой поверхностью. Для расширения пространства можно соединить гостиную и кухню. Не используйте объемную мебель, она визуально «съест» площадь
Обращайте внимание на компактные, многофункциональные варианты. Большие люстры не подойдут для комнаты
Замените их торшерами и бра.
Раздвижные системы помогут сэкономить немного места
Гостиную можно совместить с кухней
Светлые оттенки визуально расширят границы комнаты
Создание удачного альянса
Если наличие камина в гостиной довольно логично, то перенос в эту зону лестницы является неординарным решением. И при всей сложности, данные конструкции могут прекрасно ужиться на одной территории и дополнить друг друга в интерьере.
Следует изначально разделить 2 варианта устройства зала:
- лестница и камин как отдельно стоящие элементы;
Решение интерьера гостиной с двумя крупными конструкциями: кирпичный камин и деревянная лестница
- лестница вокруг камина или над ним.
Деревянная лестница вокруг камина из натурального камня
Если в первом случае, необходимо соединить эти конструкции в едином стиле, и вписать в интерьер дома, лестница и камин во втором варианте должны быть соединены на уровне строительного решения.
Сразу стоит заметить, что для подобного симбиоза прекрасно подходят угловой и встроенный камин. Но вполне возможна реализация ступеней и с камином пристенного типа, если удачно вписать накладной дымоход в перила лестницы.
Важно! Независимо от того, каким образом планируется устроить лестницы и камины, первым делом следует составить предварительный зональный чертеж гостиной. На данном эскизе следует с соблюдением масштабов разместить обе конструкции
При строительстве камина под лестницей, следует составить чертеж в разрезе.
Гостиная должна быть вписана в основной интерьер дома, поэтому выбор материалов для того, чтобы устроить камин у лестницы, изначально несколько ограничены.
На заметку: При этом дизайн гостиной с камином и лестницей может быть выполнен практически в любом стиле. Наряду с классическими интерьерами, дизайнеры смело воплощают в жизнь дерзкие и современные формы. При этом реализация стилей типа лофт или хай-тек дает возможность использовать в интерьере радикальные и высокотехнологичные материалы.
Тонкости и нюансы
Выгода от устройства камина под лестницей в гостиной вполне очевидна. Вы получаете:
- уютную и комфортную зону для отдыха;
- дополнительный вариант системы обогрева;
- привлекательный дизайнерский элемент.
Но, приступая к реорганизации пространства с целью соединить лестницу с камином, предварительно необходимо учесть некоторые тонкости.
Инструкция из подсказок во избежание стандартных ошибок:
- Строить лестницу и камин своими руками довольно сложно. Необходимо, кроме финансовой свободы, обладать наличием большого количества свободного времени и определенными навыками в области устройства дымоходов.
- На начальной стадии монтируется труба воздуховода, а уже затем укладывается топка и устраивается лестница.
- Перед началом строительства обязательно продумайте, в каком стиле будут оформлены конструкции, и какие материалы будут для этого использоваться.
- При строительстве лестницы над камином, учитывайте тот факт, что под ступенями будет гореть огонь, и конструкция будет нагреваться.
Решения в различных стилях
Высота потолков и площади пространства позволяет устраивать в гостиных стиля лофт огромные камины с интересными воздуховодами.
Роскошь в стиле ар-деко: каминные залы для «прожигателей» жизни.
Камины и лестницы – дизайн в стиле хай-тек. Такие интерьеры сочетают в себе новейшие технологии, ультрасовременные строительные материалы и первобытный огонь.
Камины прекрасно вписываются в склонный к излишествам барокко.
Интерьеры гостиных в деревенском стиле: всё что касается кантри, рустика и всего этнического — очень подходит по духу устройству камина.
Мистические настроения готики, и её тяга к высоким потолкам и арочным решениям, позволяют удачно вписать камины и лестницы в гостиные.
Правильное освещение
Грамотное искусственное освещение двухуровневого помещения раскроет дизайн комнаты в самом выгодном свете. Но как создать такую систему света, чтобы она только подчеркивала достоинства большого зала?
Точечная подсветка здесь уместна, как средство для выделения разноуровневости площади. Например, ее используют на лестнице или в нишах.
Настенные светильники при таком варианте помещения, где есть дополнительные окна, лучше использовать группами. Допустимо подсвечивать телевизор и картины при помощи светодиодной ленты. Хороши в данном интерьере и торшеры, установленные посередине вместе с диваном и журнальным столиком.
Главное правило искусственного освещения при втором свете – это использование настенных бра и им подобных аксессуаров. Без настенного света в темное время суток комната будет освещена лишь в центре, а ее углы будут утопать в тенях и полумраке.
Изюминка искусственной иллюминации второго света заключена в люстре под потолком
Ведь при высоких потолках на эту деталь всегда обращают внимание. Поэтому люстра должна полностью отражать стилевую интерьерную концепцию
Особенности оформления
Освещение второго уровня в доме помогает решить проблему высоких потолков без использования лишних деталей. Максимальное естественное освещение делает общую атмосферу более уютной и комфортной.
Еще такое освещение является хорошим источником света для лестницы на втором этаже. Второй свет прекрасно справляется с естественным подсвечиванием разного рода мансард и коридоров.
В многоуровневой квартире и в коттедже окна второго ряда украшают не только комнату изнутри, но и делают фасад дома более интересным и красивым.
Реализация идеи второго света не должна проходить в ущерб интерьеру гостиной. Так лишь некоторые детали должны быть подобраны под данный способ освещения, остальное должно согласовываться с общей концепцией интерьера.
Одноэтажный дом также может быть местом, где присутствует вторичное освещение. Для воплощения данного дизайна существует два способа:
- Максимально опускается пол;
- Убирается перекрытие потолка.
Если квартира или дом имеют недостаточную высоту потолков, то их отделка при создании второго света – удовольствие дорогое. Но этот дизайнерский прием поможет создать по-настоящему эксклюзивный интерьер.
Такие ухищрения делают атмосферу необычной и неповторимой, придавая всем вещам в комнате нетривиальный вид.
Использование штор
Дома со вторым светом требуют особого подхода к оформлению дизайна. Одной из важных деталей в интерьере здесь являются шторы. С их помощью интерьер можно дополнительно подчеркнуть, вдобавок защитить от яркого солнечного света. Одновременно шторы могут испортить общий вид, и оригинальная задумка станет не роскошной, а безвкусной. Именно поэтому необходимо учитывать определенные критерии:
- Определить функцию занавесей – декоративную или защитную.
- Учесть назначение помещения, его расположение к свету.
- Решить вопрос централизации: будут окна основным привлекающим акцентом или частью целостного интерьера.

Для гостиной лучшим решением станет соответствие единого стиля. Поэтому выбрать можно классические многослойные гардины с лабрекенами, тюлем, подхватами, занавеси свободного кроя на люверсах, японские панели – главное фантазия.
Если необходимо расширить помещение, то выполнить визуально такую задачу помогут горизонтальные полосы. Напротив, вертикальный принт на шторах еще больше подчеркнет высоту, тем более если будут использованы гардины, карниз которых находится под потолком.
Относительно цветовой гаммы стоит отметить, что светлые тона добавляют еще больше света. Но если окна выходят на южную сторону, то даже холодные оттенки и темные цвета не испортят атмосферу. Нужно помнить, что на ярких или имеющих пестрые рисунки стенах шторы должны быть однотонными, в спокойной цветовой гамме. На матовых светлых обоях отлично смотрятся шелковые или синтетические занавески.
Размещение камина
Камин в комнате имеет большое значение. Он является украшением и дополнительным источником тепла. Перед камином, обычно, устраивают зону отдыха. Если помещение слишком большое и его центр удален от стен, где можно сложить камин, то можно использовать каминную имитацию. Например, стеклянный камин, работающий на специальном топливе или газе, здесь подойдет лучше других вариантов.

Там, где это возможно, камин размещают между центральными окнами или сбоку от них. Это положение помогает бороться с теплопотерями, а также не нарушает общую гармонию интерьера.

Иногда камин можно использовать для зонирования. Тогда его труба проходит по центру комнаты, а позади него располагается специальная стилизованная стенка.





Эпатаж в советском интерьере
Множество предметов, произведенных в советский период, получится отыскать только на заброшенных чердаках или в раритетных коллекциях. Но не только предметы быта вызывают удивление или смех на лицах молодых людей, живущих в 21 веке. Множество того, что когда-то казалось людям модным и красивым, сегодня именуют популярным словом «эпатаж». Можно выделить 5 предметов, которые вызывают наибольшее удивление на лицах молодого поколения.
Первое, что бросается в глаза при просмотре фотографий периода СССР – ковры на стенах, которые по праву лидируют в рейтинге «Советский эпатаж». Полотно с изображением оленей, натюрмортов использовалось с декоративной целью и… для экономии обоев. Также причиной оригинальной декорации становились холодные стены (роль теплоизолятора) и шумные соседи (роль шумоизолятора).

Советский дизайн у молодежи вызывает смех или удивление

Советский дизайн можно осовременить

В таком дизайне есть много непонятных вещей
Второе почетное место в рейтинге эпатажных предметов советского времени являлась швейная машинка с ножным приводов, служащая «помощницей» в рукоделии и местом хранения обуви. Поверх нее обычно застилали скатерть, после чего прибор превращался в рабочий стол. Третьим предметом, которым можно удивить сегодняшних школьников, является телевизор или радиола на ножках (как у табуретки).
Четвертая позиция рейтинга заслуженно достается ажурным салфеткам, которыми укрывали не только стол, стулья, но и ранее упоминаемые телевизор, радиолу. С 30-х годов прошлого века ажурное, зачастую самодельное украшение, использовалось как декор для подушек, верха шкафов и сервантов. Замыкает пятерку сервант или как его еще именуют – «буфет». Этот предмет мебели служил местом хранения сервизов производства Ленинградского фарфорового завода (или другой праздничной посуды), семейных фотографий, иногда – денег. Подобные вещи складывали в верхнюю часть серванта со стеклянными вставками в дверцах – чтобы все видели «богатство» семьи, в нижней же части буфета, за деревянными дверцами скрывались полотенца, одежда и другие ценности (например, запрещенная Библия или банки с огурцами).

Стены обычно украшали картинами, календарями или плакатами

Обои обычно были полосатые либо в цветочек
Под какие стили подходит
Стили в интерьере, под которые подходит второй свет, могут быть практически любыми. Но выгоднее всего второй световой уровень смотрится в направлениях прованс, кантри, лофт, классическом и современном стилях.

Модерн, барокко, дворцовый классицизм тоже прекрасно реализуются при использовании второго света. Сложности здесь могут возникнуть только с минимализмом, так как в нем не применяется громоздкая мебель, которая является непременным атрибутом помещения с высокими потолками и огромными окнами.

Чтобы уравновесить второе освещение с любым стилем, необходимо придерживаться следующих правил:
- Выбирать крупные детали интерьера;
- Не оставлять пустым центр комнаты;
- Использовать ковры и другие заглушающие акустику предметы, или воспользоваться хорошим звучанием и поставить рояль;
- Заполнять пространство стен полками и декором, чтобы избежать эффекта пустующей и нежилой площади.
Второй свет в дневное время освещает комнату по максимуму, но вечером шторы закрываются, поэтому стоит позаботиться об искусственном освещении огромной комнаты заранее.





Тонкости шумоизоляции
В двухуровневой квартире достаточно сложно решить проблему звукоизоляции. Звук распространяется по лестничному проему снизу-вверх или наоборот. Особенно эта проблема актуальна в жилищах где гостиные или холлы объединяют два этажа
Поэтому в спальнях, кабинете, комнатах где важно достичь комфортной тишины, необходимо установить двери с определенными параметрами по звукоизоляции. Также не помешает улучшить шумоизоляцию стен, полов при помощи специализированных строительных материалов
Чтобы это правильно сделать, можно довериться профессионалам, либо поискать и изучить инструкции, которых нужно придерживаться устраняя проблему недостаточной звукоизоляции самостоятельно.
Дизайн маленькой квартиры — идеи интерьера (фото)

Обзор проектов двухэтажных домов
Перед выбором проекта можно посмотреть несколько советов профессионала.
Планировка дома 9 на 9 м

Планировка двухэтажного дома 9 на 9 м самая оптимальная площадь для среднестатистической семьи. Квадратный периметр позволит рационально использовать все помещения. Полноценный второй этаж позволит максимально использовать полезную площадь, обустроив 3 спальни, просторную ванную комнату и гардеробную. Балкон можно занять под комнату отдыха или зимний сад при хорошем остеклении.
Компактный на первый взгляд дом имеет большую площадь для реализации самых смелых планов. Этому не помешает небольшой участок земли, на котором останется место для изысканного ландшафтного дизайна и цветочных композиций.
Типовая планировка дома 9*9
План двухэтажного дома 10 на 10 м

Проект двухэтажного дома 10 на 10 смело можно назвать вип-проектом. Единственно, что нужно при выборе такого плана – иметь достаточную площадь земельного участка. На маленькой площади дом смотреться будет громоздко. Желательно, чтобы осталось место для дополнительных построек: беседки, пруда, дорожек.
Это полезно знать! Для лучшего освещения мансардного этажа следует воспользоваться специальными конструкциями вместо обычного остекления.
Типовой дом площадью 128 кв.м

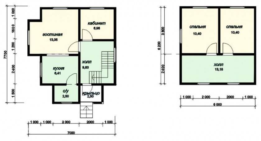
Проект двухэтажного дома 7 на 7 м
Планировка дома 7 на 7 м пользуются большой популярностью в последнее время. Для строительства может быть использован любой материал, здесь нет ограничений
Важно учитывать особенности земельного надела, размер которого должен быть не менее 4 м². Форма участка может быть любой конфигурации, квадратный домик гармонично разместится на любой земле
Цена дома такого размера будет зависеть от материалов, применяемых технологий и региона застройки. Правильное зонирование первого этажа позволит на небольшой площади размещать комнаты разные по функциональности.
Выбирая проект нужно определить разные интересы членов семьи.

Типовой двухэтажный дом 7×7 м
Планировка дома 6 на 8 м
Проекты небольших домов — одни из самых востребованных для среднестатистической семьи. Они подойдут для земельных участков площадью 8-9 соток. Это может быть и дачный домик. Комнаты нельзя назвать просторными, однако приемы зонирования визуально расширят границы. 2 спальни на втором этаже, кухня с гостиной на первом, гараж с котельной и прачечной — в цокольном.
Проект дома 8 на 6м подойдет для семьи из 4-5 человек.

Компактный двухэтажный домик
Планировка дома 6 на 10 м
Компактный проект дома 6 на 10 м без гаража с котельной на первом этаже. Кухня достаточно просторная 13,0 кв.м. При таком планировании наглядно можно увидеть как коридор 9,0 кв.м занял основное место на первом этаже. Тем не менее, осталось место для общей гостиной и гостевой спальни. На обоих этажах находятся просторные ванные комнаты.
На втором этаже одну из комнат отвели под кабинет, другую – под гардеробную. Для отдыха получились только 2 спальни. В целом такой проект предназначен для семьи из 3-4 человек.

Грамотное планирование
Планировка дома 9 на 6 м
Проект дома 9 на 6 м позволяет подойти нестандартно к размещению членов семьи. 4 спальни на втором этаже и 2 – на первом позволят максимально организовать быт для семьи из 6 человек. Одну из комнат можно отдать под гостевую или гардеробную. Размещение санузла и ванной только на 1 этаже не совсем удобно. Данный проект можно доработать, изменив внутреннюю трубную разводку до 2 этажа.
Гостиная совмещена с кухней площадью 12,1 кв.м, в целом получилось достаточно просторная площадь, которую разделить можно барной стойкой.

Проект можно назвать достаточно удачным, поскольку в нем нет коридоров, только небольшой холл на 1 и 2 этаже площадью 4,9 и 5,3 кв.м соответственно. Изюминкой проекта можно назвать балкон, который при хорошем остеклении может стать маленьким зимним садом.
Проект дома 9 на 6 м
Большие двухэтажные дома 12 на 12 м
Проект двухэтажного дома 12*12 из бруса подойдет для семьи из 4-5 человек. На первом этаже пристроена веранда, над которой надстроен балкон-терраса. Первый этаж не стали утяжелять перегородками и совместили кухню-гостиную-столовую на одной площади. На втором этаже предусмотрены 3 спальные комнаты.

Просторную ванную комнату также решили оставить на 1 этаже. Ее площадь позволяет установить и ванную, и душевую кабину, и стиральную машинку. Небольшой холл выполняет роль тамбура, из которого сразу можно подняться на 2 этаж.
В целом дом напоминает абсолютное уединение от городской суеты, тепло ему придает дерево.
Дом из сруба
Цветовая гамма и освещение
Рекомендуется использовать светлые оттенки. Они позволяют визуально расширить территорию, добавив комнате свободы и воздуха. Лучше однотонные покрытия, без рисунков и крупных орнаментов. Если хочется добавить немного темной гаммы, то выберете для нее лишь одну стену.

Цвет стоит выбирать исходя из функций которые будет выполнять комната

Не рекомендуется использовать много темных оттенков
Света в проходной должно быть много, как естественного, так и искусственного. Потому не используйте для окна плотные шторы, лучше легкие прозрачные материалы. Добавьте больше источников света. Большая люстра не подойдет, потому используйте бра. Отличным решением станет точечные светильники с разной направленностью.
Цветовые решения для узкой спальни
Определившись со стилем интерьера узкой спальни можно переходить к подбору цветовой гаммы. Именно цвет позволяет обыграть пространство, визуально скорректировать его недостатки. Лучше всего сгладить разницу в длине стен помогает светлая палитра. Темные тона лишь подчеркивают геометрию спальни, усиливая недостаток планировки помещения.

А вот белый цвет полностью стирает видимые границы, объединяя стены, пол и потолок. Если белоснежный тон кажется излишне стерильным, то можно использовать теплые оттенки (бежевый, молочный). Кроме того, всегда уместно смотрятся пастельные тона, создающие нежную и умиротворяющую атмосферу. Например, изысканно выглядит фисташковый, розовый, персиковый или песочный оттенок.

Не менее привлекательно выглядит спальня комната, оформленная при помощи природных оттенков (голубого, коричневого, хвойного). Они создают особую атмосферу уюта, сближая человека с его естественной средой. Скорректировать геометрию длинной спальни помогут цветовые комбинации. Например, узкую стену можно окрасить в насыщенный цвет, а прилегающие стены оставить светлыми и однотонными.

Совет Помните об особенностях маленького помещения
Если под деревянным домом подразумевается дача, на которую семья съезжается только по выходным и праздникам, то кухня может быть и совсем небольшой. Тем более, чаще всего в нашей стране любят готовить на природе — шашлыки или барбекю, а плита используется не так часто.
Тем не менее, продуманный дизайн может стать огромным плюсом
Важно соблюдать один принцип — использовать минимум необходимых вещей для приготовления пищи
Дизайнеры делятся некоторыми секретами, как своими руками создать идеальный интерьер на небольшой кухне в деревянном доме:
отделка не должна быть массивной, поскольку будет давить на человека, а к тому же заберет драгоценные сантиметры — камень и блок-хаус под запретом
минимализм на практике — стоит ограничиться только самым необходимым списком вещей, например, мойкой, парой тумб под широкой столешницей и несколькими открытыми стеллажами; если хочется добавить уюта и уникальности кухне, то можно самому изготовить мебель или хотя бы украсить ее своими руками росписью, резьбой или техникой декупаж — особых изысков не требуется; трансформеры сделают кухню более комфортной и функциональной — это могут быть стеллажи на колесиках, столешница с выдвижной доской, раскладывающаяся тумба и так далее; важно задуматься о количестве и размере бытовой техники. Например, от духового шкафа в загородном доме чаще всего можно отказаться, а холодильник выбрать однокамерный — его будет вполне достаточно, чтобы хранить запасы еды на пару дней; можно отказаться от стандартной плиты в пользу варочной панели с двумя конфорками — это значительно сэкономит пространство; если на мини-кухне не планируется часто готовить, то можно обойтись миниатюрными версиями бытовой техники
Например, для создания комфортного рабочего треугольника подойдут узкая мойка на 40 см, варочная панель на 1–2 конфорки и однокамерный холодильник. Помимо этого, можно поставить барную стойку и использовать ее как рабочую и как обеденную зону.



Даже маленькую кухню можно сделать стильной и комфортной одновременно. Главное — заранее определиться, какие задачи будут на ней выполняться.








Под какие стили подходит
Стили в интерьере, под которые подходит второй свет, могут быть практически любыми. Но выгоднее всего второй световой уровень смотрится в направлениях прованс, кантри, лофт, классическом и современном стилях.

Модерн, барокко, дворцовый классицизм тоже прекрасно реализуются при использовании второго света. Сложности здесь могут возникнуть только с минимализмом, так как в нем не применяется громоздкая мебель, которая является непременным атрибутом помещения с высокими потолками и огромными окнами.

Чтобы уравновесить второе освещение с любым стилем, необходимо придерживаться следующих правил:
- Выбирать крупные детали интерьера;
- Не оставлять пустым центр комнаты;
- Использовать ковры и другие заглушающие акустику предметы, или воспользоваться хорошим звучанием и поставить рояль;
- Заполнять пространство стен полками и декором, чтобы избежать эффекта пустующей и нежилой площади.
Второй свет в дневное время освещает комнату по максимуму, но вечером шторы закрываются, поэтому стоит позаботиться об искусственном освещении огромной комнаты заранее.





Достоинства и недостатки
Вторым светом называется зал без потолочного перекрытия. Его нет только над одной большой комнатой, из которой ведет лестница на второй или мансардный этажи в другие жилые помещения.

Планировка со вторым светом встречается не в каждом доме. Несмотря на явные преимущества, противников у двойного пространства тоже достаточно. Прежде чем решиться на высокие потолки, следует взвесить все за и против. Начнем с достоинств.
- Дом со вторым светом эффектен внутри и снаружи.
- Гостиная наполняется светом и воздухом. Чтобы поддержать ощущение объема, ее стараются не перегружать мебелью и даже лестницы делают прозрачными, словно парящими в воздухе.
- Необычное большое помещение хорошо поддается зонированию. На одной территории можно разместить все, что нужно для жизни: кухню, столовую, гостиную, уютный уголок для отдыха у камина.
- Огромное незаурядное пространство – мечта любого дизайнера, в котором он может воплотить все свои фантазии и создать неповторимый интерьер.
- За панорамными окнами нередко наблюдается красивый природный или урбанистический пейзаж.
- В просторном зале приятно встречать гостей, где каждому найдется уютное местечко.
- Высокое пространство позволяет использовать неординарный декор, который невозможен в помещении с обычными потолками. Например, вполне реально прикупить вытянутую свисающую люстру с экстравагантным дизайном или установить кадку с пальмой на два этажа.
- Зал, уходящий под самую крышу, необычен, смотрится величественно и прибавляет статус хозяину.


Что касается недостатков, к сожалению, они тоже имеются.
- Комната требует усилий и денежных вложений для создания дополнительного утепления, ведь над головой видна крыша и отсутствует чердак, который создает воздушную полушку, утепляющую дом. Придется монтировать систему «теплый пол», устанавливать добавочные радиаторы.
- Если нужна полезная площадь чердака, то из-за планировки со вторым светом она потеряется.
- Мощная акустика большого зала будет мешать находящимся в других комнатах, понадобится звукоизоляция.
- Если в главном помещении найдется место для кухни или столовой, запахи также будут разноситься по всему дому.
- Обслуживать объемный зал совсем непросто – чтобы повесить шторы, сменить лампочку, сделать уборку и тем более ремонт, потребуют особые усилия.
- Не каждому по душе придутся большие окна, открывающие приватное пространство.

Заключение
Обустраивая двухуровневую квартиру, важно учитывать все ее особенности, внимательно продумать планировку и оформление. Это довольно сложная задача даже для профессиональных архитекторов и дизайнеров-декораторов
Поэтому перед началом обустройства необходимо хорошо продумать весь проект до малейших нюансов. Большое пространство позволяет воплотить любые, самые невероятные и интересные идеи, создать оригинальный, современный, индивидуальный дизайн. При желании, возможно каждый уровень превратить в произведение искусства, сделать жилье уникальным, стильным, роскошным, максимально функциональным и комфортным.

























































